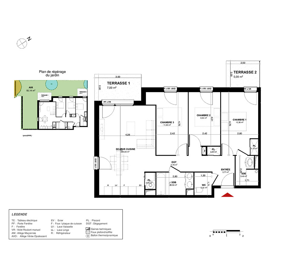
Appartement T4 n°1008 à Bassens (33530)
Prix : nous consulter
Castelie à Bassens
À noter
- Bassens
- Livraison 3ème trimestre 2028
- Résidence principale/secondaire
- Investissement locatif
- Votre suivi personnalisé Peterson.fr
- Garanti prix direct promoteur
Prestations et équipements
À propos du programme
Castélie Votre nouvelle adresse à Bassens, aux portes de BordeauxSituée au coeur de Bassens, la résidence Castélie bénéficie d'un emplacement privilégié, à deux pas des commerces, des écoles et des transports en commun. Un cadre idéal pour acheter un appartement neuf à Bassens ou réaliser un investissement locatif rentable en périphérie de Bordeaux. Implantée dans un environnement verdoyant, la résidence propose des logements neufs modernes et lumineux, pensés pour répondre à tous les besoins. Castélie offre une large gamme d'appartements du 2 au 4 pièces avec balcons ou jardins privatifs, alliant confort, fonctionnalité et belles prestations. Que vous souhaitiez devenir propriétaire avec un prix plus accessible que dans Bordeaux, où votre loyer équivaut souvent à une mensualité de crédit, ou que vous recherchiez un placement locatif attractif, Castélie représente une opportunité rare dans un secteur en plein essor.
Bassens
En travaux

Accédez à notre page dédiée au programme "Castelie" pour tout savoir sur la résidence, ses prestations et son quartier.
Autres biens disponibles
Un nouveau programme immobilier avec « Castelie »
« Castelie » est un programme immobilier neuf. Il se situe à Bassens. Ce projet est constitué de 33 appartements neufs dont 33 qui sont toujours disponibles. Ils sont de type T2, T3 et T4 et adaptés à la fois à une résidence principale ou secondaire et à un investissement locatif. Éligibles au dispositif de droit commun, les biens seront livrés au deuxième trimestre 2028.




