Prochainement A MillauProchainement A MillauProchainement A MillauProchainement A Millau
Prochainement A Millau
Prochainement A Millau
Prochainement A Millau
Prochainement A Millau

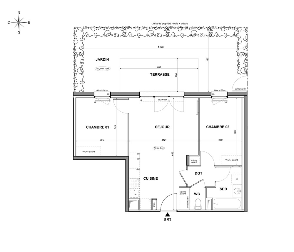
Appartement T3 n°B03 à Millau (12100)

Prix : nous consulter

Millau (12100)

Prochainement A Millau à Millau

Appartement
T3 / F3 / 3 pièces
52,8 m² habitables
RDC
Nord
2 chambres
Parking couvert
Jardin 30 m²
Terrasse 9 m²

À noter

  • Millau
  • Livraison 3ème trimestre 2028
  • Résidence principale/secondaire
  • Investissement locatif
  • Votre suivi personnalisé Peterson.fr
  • Garanti prix direct promoteur

Prestations et équipements

Parking
Jardin
Terrasse / Balcon

À propos du programme

Laissez-vous séduire par le charme d’une résidence aux accents historiques, dont l’architecture rend hommage aux traditions locales en reprenant les matériaux et la délicatesse des lignes provençales. Un charmant jardin intérieur, planté de majestueux platanes, invite à la quiétude tout en offrant de belles vues verdoyantes aux appartements. Du 2 au 4 pièces, les logements lumineux proposent des plans contemporains, fluides et fonctionnels, et s’ouvrent sur des balcons, terrasses ou jardins privatifs pour un art de vivre inégalé.

En travaux

Livraison 3ème trimestre 2028

Accédez à notre page dédiée au programme "Prochainement A Millau" pour tout savoir sur la résidence, ses prestations et son quartier.

Autres biens disponibles

Venez explorer « Prochainement A Millau »

Millau dispose du projet immobilier neuf « Prochainement A Millau ». Ce programme compte 4 appartements neufs dont 3 sont encore disponibles. Ils sont de type T2 et T3 et peuvent faire office de résidence principale ou secondaire ainsi que d'investissement locatif. Sachez que les biens sont éligibles aux dispositifs de droit commun et LMNP (loueur en meublé non professionnel) hors bail commercial et seront mis à disposition fin septembre 2028.

Appartement 2 pièces
2 biens disponibles
N° de lot
Surface
Commodités
Étage
Exposition
Lot n°B18B18
37 m²
Parking, Terrasse / Balcon
Étage 1
Exposition : NordNord
Lot n°B02B02
37 m²
Parking, Jardin, Terrasse / Balcon
RDC
Exposition : NordNord
N° de lot
Surface
Commodités
Étage
Exposition
Lot n°B15B15
60 m²
Parking
Étage 1
Exposition : SudSud