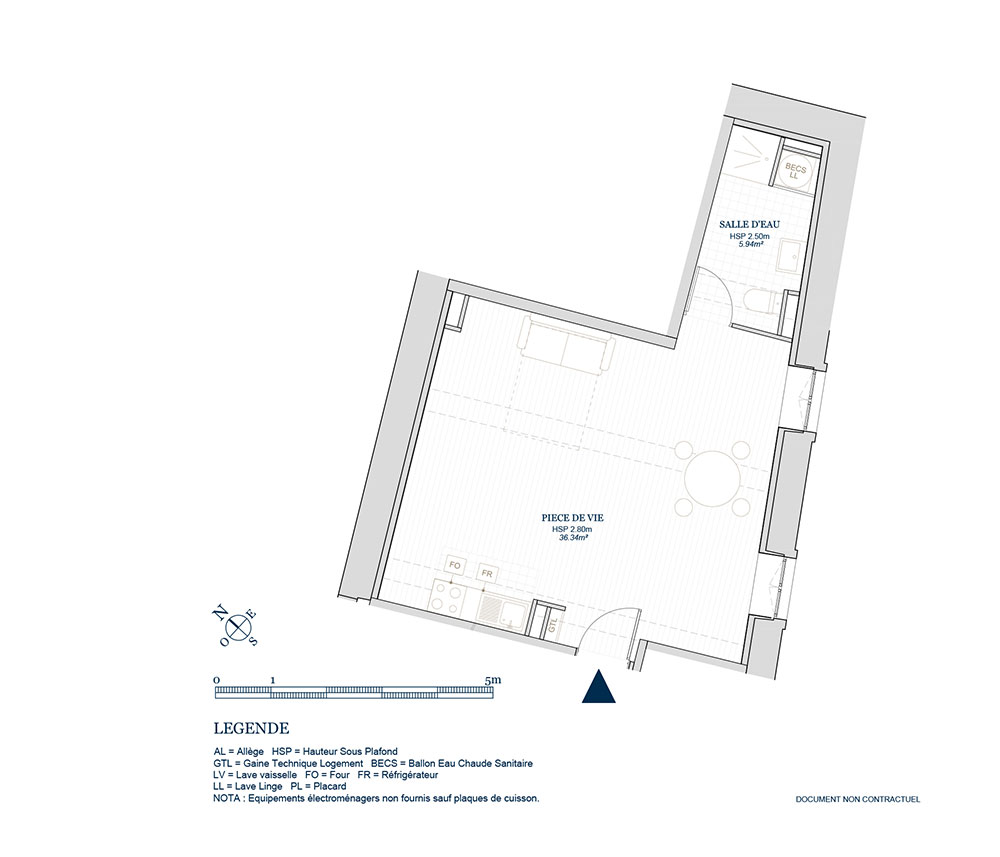
Appartement T1 n°003 à Nuits-Saint-Georges (21700)
Prix : nous consulter
Les Anciens Hospices de Nuits-Saint-Georges à Nuits-Saint-Georges
À noter
- Nuits-Saint-Georges
- Livraison 4ème trimestre 2028
- Investissement locatif
- Votre suivi personnalisé Peterson.fr
- Garanti prix direct promoteur
À propos du programme
Entre Dijon et Beaune, Nuits-Saint-Georges séduit par ses vignobles classés à l’UNESCO, son patrimoine historique et son art de vivre. La ville allie dynamisme économique, commerces, équipements modernes et douceur de vie au cœur des paysages viticoles.
Nuits-Saint-Georges
En travaux

Accédez à notre page dédiée au programme "Les Anciens Hospices de Nuits-Saint-Georges" pour tout savoir sur la résidence, ses prestations et son quartier.
Autres biens disponibles
Nouveauté sur le marché de l'immobilier : en savoir plus sur le projet « Les Anciens Hospices de Nuits-Saint-Georges »
« Les Anciens Hospices de Nuits-Saint-Georges » est un programme immobilier neuf. Il se situe à Nuits-Saint-Georges. Ce programme contient 4 appartements neufs qui se joignent au parc immobilier local. 4 d'entre eux restent encore sur le marché. De type T1 et T2, ils s'adapteront à l'investissement locatif. Les logements sont éligibles au dispositif de monument historique. La livraison est attendue à la fin de l'année 2028.



