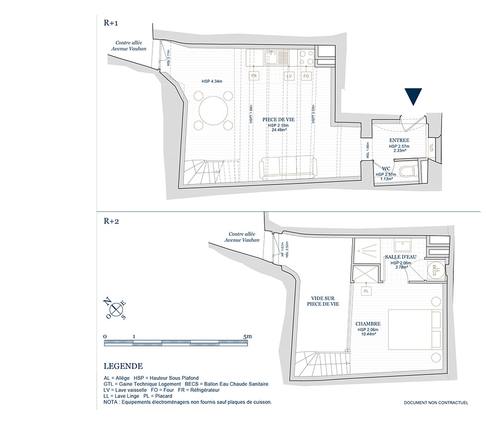
Appartement T1 n°1G à Briançon (05100)
Prix : nous consulter
La Porte des Alpes à Briançon
À noter
- Briançon
- Livraison 4ème trimestre 2027
- Investissement locatif
- Votre suivi personnalisé Peterson.fr
- Garanti prix direct promoteur
Ce programme propose des biens éligibles aux dispositifs de défiscalisation suivant :
À propos du programme
Située à la confluence des magnifiques vallées de la Durance et de la Névache, au pied du massif des Écrins et du parc naturel du Queyras, Briançon est à la fois terre de montagne et terre d’histoire. Juchée à 1326 m d’altitude, la cité fortifiée bénéficie d’un ensoleillement record de 300 jours par an. Témoins exceptionnels de l’architecture militaire de montagne, ses remparts enserrent la ville haute et la ville basse, au coeur desquelles se déroulent de pittoresques ruelles en pente aux maisons hautes et aux couleurs provençales. Conçue à la fin du XVIIe siècle par Vauban, l’enceinte bastionnée, dont les sept ouvrages fortifiés jalonnent les remparts, justifie à elle seule l’inscription de Briançon au label « Ville d’Art et d’Histoire » : forts des Salettes, des Trois-Têtes, du Randouillet, d’Anjou et du Dauphin, les remarquables conceptions architecturales se succèdent. Ces pages d’histoire s’apprécient en flânant dans la « Gargouille » (petit nom pittoresque donné à la ville Haute). Fermant le haut de la ville, la porte de Pignerol en est un bel exemple. Il faut ensuite partir à la découverte des cadrans solaires, des fontaines, des fresques et des portes en bois sculpté, avant de faire une pose à l’une des terrasses animées de la place d’Armes.

Accédez à notre page dédiée au programme "La Porte des Alpes" pour tout savoir sur la résidence, ses prestations et son quartier.
Autres biens disponibles
Description du programme neuf « La Porte des Alpes »
« La Porte des Alpes » est un projet immobilier neuf situé à Briançon. 8 sont encore sur le marché parmi les 8 duplex et appartements neufs qui sont proposés dans ce programme. De type T1, T1 bis, T2 bis et T3, vous avez la possibilité d'en faire un investissement locatif. Sachez que les biens seront livrés à la fin de l'année 2027 et qu'ils sont éligibles au dispositif Malraux.




