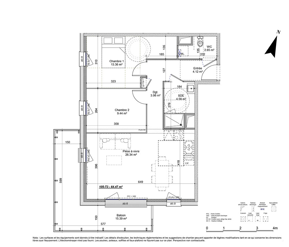
Appartement T3 n°105 à Ifs (14123)
Prix : nous consulter
Le Clos du Marronnier à Ifs
Appartement
T3 / F3 / 3 pièces
64,47 m² habitables
1er étage
Sud-est
2 chambres
Station. 1
Balcon 15 m²
À noter
- Ifs
- Livraison 4ème trimestre 2027
- Résidence principale/secondaire
- Investissement locatif
- Votre suivi personnalisé Peterson.fr
- Garanti prix direct promoteur
Prestations et équipements
À propos du programme
Avec 28 appartements privés, la résidence offre un cadre de vie calme et agréable. Située à proximité immédiate de tous les services et commerces, Le Clos du Marronnier c’est l’assurance de vivre dans des logements modernes, lumineux et sécurisés. Conformément aux dernières réglementations acoustiques et thermiques, grâce également à une isolation renforcée, les occupants de la résidence Le Clos du Marronnier bénéficieront d’un grand confort de vie et de faibles consommations énergétiques.
En travaux
Livraison 4ème trimestre 2027

Accédez à notre page dédiée au programme "Le Clos du Marronnier" pour tout savoir sur la résidence, ses prestations et son quartier.
Autres biens disponibles
Le programme neuf Le Clos du Marronnier, situé dans la ville de Ifs, est composé de 28 logements neufs de type appartement répartis en T2, T3, livrés au 4ème trimestre 2027 et destinés aux différents projets : résidence principale, résidence secondaire et investissement locatif. Ce programme neuf est éligible au dispositif Droit Commun pour habiter ou investir à Ifs.
N° de lot
Surface
Commodités
Étage
Exposition



