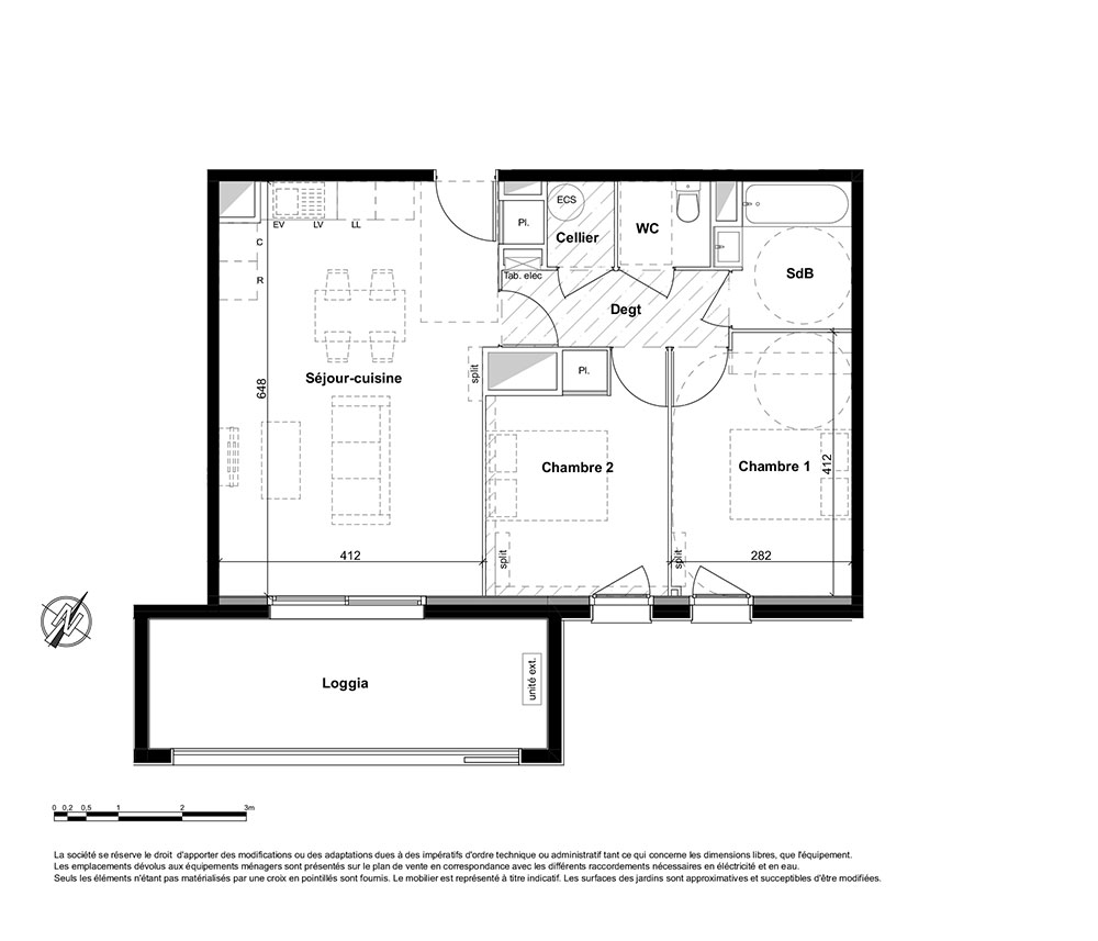
Appartement T3 n°103 à Rive gauche (secteur 2) Toulouse (31300)
Prix : nous consulter
Arcelia à Rive gauche (secteur 2) - Toulouse
À noter
- Toulouse
- Livraison 2ème trimestre 2028
- Votre suivi personnalisé Peterson.fr
- Garanti prix direct promoteur
À propos du programme
Situé dans le quartier Saint-Cyprien à Toulouse, le programme immobilier neuf Arcelia bénéficie d'un emplacement privilégié, à proximité immédiate des bords de Garonne, de l'hyper-centre et des futurs aménagements du Parc Garonne.
Cette résidence neuve à taille humaine propose 26 appartements du 2 au 5 pièces, conçus pour répondre aux attentes des acquéreurs en quête de confort, de fonctionnalité et de qualité de vie en coeur de ville. Les logements offrent des plans optimisés, une belle luminosité et, pour la majorité, un extérieur privatif.
Le programme bénéficie d'une excellente accessibilité grâce à la proximité du métro ligne A - Saint-Cyprien République, du tramway T1 et T2 - Fer à Cheval, des lignes de bus et des pistes cyclables. Commerces, écoles, services et équipements culturels sont accessibles à pied.
Pensé pour l'habitat comme pour l'investissement, Arcelia s'inscrit dans un secteur à forte attractivité résidentielle et locative, rare en immobilier neuf à Toulouse. La résidence dispose de stationnements en sous-sol, ainsi que de prestations soignées, conformes aux normes en vigueur.
Arcelia, une opportunité rare pour acheter un appartement neuf à Toulouse Saint-Cyprien, dans un cadre de vie recherché entre ville et nature.
Rive gauche (secteur 2)
En travaux

Accédez à notre page dédiée au programme "Arcelia" pour tout savoir sur la résidence, ses prestations et son quartier.
Autres biens disponibles
L'essentiel du projet neuf « Arcelia »
« Arcelia » vient augmenter le parc immobilier neuf de Toulouse. Ce nouveau programme compte, sur un total de 8 appartements neufs, 8 biens encore disponibles. Les logements qui sont construits dans ce projet sont de type T2, T3 et T4. Les biens sont éligibles aux dispositifs Jeanbrun, LMNP (loueur en meublé non professionnel) hors bail commercial et de droit commun. La livraison est annoncée au deuxième trimestre 2028.



