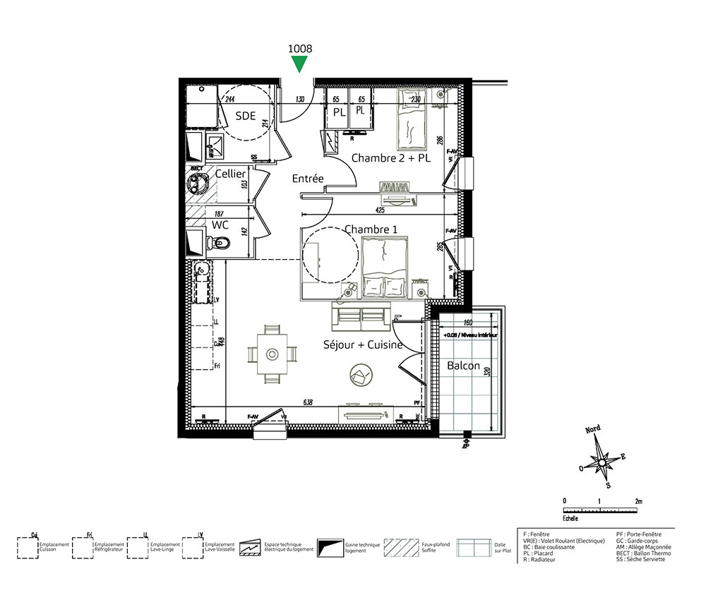
Appartement T3 n°1008 à La Barre-de-Monts (85550)
Prix : nous consulter
Villa Barena à La Barre-de-Monts
À noter
- La Barre-de-Monts
- Livraison 3ème trimestre 2028
- Résidence principale/secondaire
- Investissement locatif
- Votre suivi personnalisé Peterson.fr
- Garanti prix direct promoteur
Prestations et équipements
À propos du programme
En avant première, découvrez notre nouvelle résidence face à l'île de Noirmoutier !La Barre-de-Monts, une commune qui conjugue entre esprit balnéaire et qualité de vie au quotidien. Entre mer, marais et forêt, elle offre un cadre naturel rare et agréable été comme hiver. Face à l'île de Noirmoutier, la ville séduit par ses plages de sable fin, son charmant port du Bec, et ses pistes cyclables. Située dans un quartier résidentiel, la résidence bénéficie d'un environnement serein tout en restant proche du quartier vivant de Fromentine, porte d'accès vers l'île d'Yeu. Cette résidence élevée sur un seul étage, propose des appartements du 2 au 3 pièces bénéficiant de prestations soignées ainsi que d'un espace extérieur : balcon, loggia ou terrasse, permettant de profiter pleinement du cadre naturel. Conforme à la RE2020, elle allie performance énergétique et bien-être. Idéale pour s'installer à l'année comme pour profiter de séjours en bord de mer. Contactez notre conseiller pour plus d'informations!
La Barre-de-Monts
En travaux

Accédez à notre page dédiée au programme "Villa Barena" pour tout savoir sur la résidence, ses prestations et son quartier.
Autres biens disponibles
Le projet « Villa Barena » s'intègre dans le marché immobilier local
Le programme immobilier neuf « Villa Barena » se situe à La Barre-de-Monts. Ce programme propose toujours 20 de ses 20 appartements neufs qui ne sont pas encore réservés. Allant du T1 au T3, ils conviendront en même temps aux besoins d'une recherche en résidence principale ou secondaire ainsi qu'à ceux d'un investissement locatif. Sachez que les biens seront achevés au troisième trimestre 2028.

