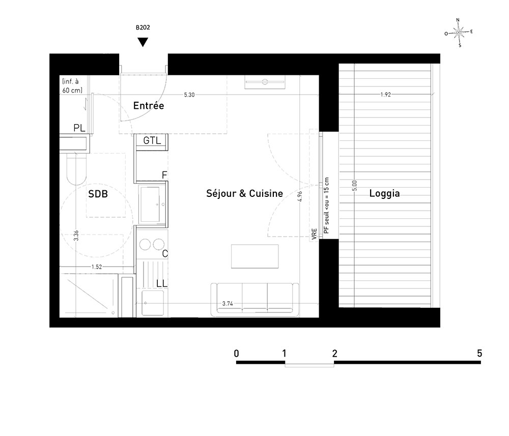
Appartement T1 n°2202 à Toulouse (31300)
Prix : nous consulter
Lisière Du Parc à Toulouse
À noter
- Toulouse
- Livraison 4ème trimestre 2028
- Résidence principale/secondaire
- Investissement locatif
- Votre suivi personnalisé Peterson.fr
- Garanti prix direct promoteur
À propos du programme
Lisière du Parc est une résidence située au coeur du quartier dynamique de la Cartoucherie à Toulouse. Ce secteur en plein essor offre un cadre de vie attractif, mêlant logements, espaces verts, commerces, équipements culturels et lieux de loisirsLa résidence Lisière du Parc développée par Crédit Agricole Immobilier et Nexity, se compose de deux bâtiments de 8 et 16 étages offrant de belles vues, notamment sur le futur parc voisin. Les appartements neufs, du studio au 4 pièces, privilégient la luminosité grâce à des configurations traversantes ou en double orientation, et disposent pour la plupart de balcons, terrasses ou jardins. Conçue avec une attention particulière portée à la qualité et à la performance énergétique, la résidence s'intègre harmonieusement dans son environnement. Bien desservie par le tramway, elle offre un accès rapide au centre-ville et constitue une opportunité rare pour habiter ou investir à Toulouse.
Toulouse
En travaux

Accédez à notre page dédiée au programme "Lisière Du Parc" pour tout savoir sur la résidence, ses prestations et son quartier.
Autres biens disponibles
Introduction au programme neuf « Lisière Du Parc »
Le projet immobilier neuf « Lisière Du Parc » s'installe à Toulouse. 16 sont encore sur le marché parmi les 16 appartements neufs qui sont présentés dans ce projet. Ils sont de type T1, T2, T3 et T4 et se prêtent aussi bien à une résidence principale ou secondaire qu'à un investissement locatif. Notez que les biens seront livrés fin septembre 2029 et qu'ils sont éligibles au dispositif de droit commun.
