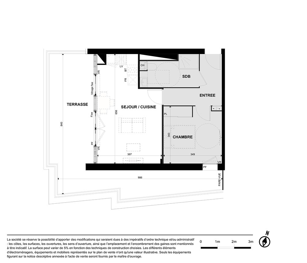
Appartement T2 n°D151 à Ouest (secteur 6) Toulouse (31300)
Prix : nous consulter
Vista Verde à Ouest (secteur 6) - Toulouse
À noter
- Toulouse
- Livraison 4ème trimestre 2026
- Résidence principale/secondaire
- Investissement locatif
- Votre suivi personnalisé Peterson.fr
- Garanti prix direct promoteur
Prestations et équipements
À propos du programme
Plongez dans une expérience de vie exceptionnelle où la nature et l’architecture se fondent en parfaite harmonie. Bienvenue dans la résidence Vista Verde, un havre de paix au cœur de Toulouse, où le bien-être et la connectivité trouvent leur équilibre. Avec ses façades mêlant briques traditionnelles et parement bois, ses moucharabiehs qui préservent l’intimité de chacun, et sa conception intelligente et contemporaine, la résidence Vista Verde saura vous séduire par son identité forte.
Un projet hybride entre la ville et le fleuve
Vista Verde se compose de cinq îlots d’habitation non alignés afin de préserver les vis à vis. Cette disposition donne une dynamique architecturale à cet ensemble de 147 logements. Ici, chaque détail est soigneusement pensé pour établir une connexion avec la Garonne, située au pied de la résidence. Les coursives délicatement tissées au centre de chaque bâtiment offrent une expérience unique permettant une circulation aérée tout en offrant des vues imprenables sur le paysage environnant.
Les balcons avec jardinières plantées, les terrasses spacieuses, et les jardins en rez-de-chaussée sont eux-mêmes au cœur d’un sanctuaire naturel en zone préservée. Parfaitement sécurisée, la résidence Vista Verde propose un système d’accès vigik pour l’ouverture des portails piétons, des caméras de vidéosurveillance et des places de parking sous pergola et en sous-sol.
Ouest (secteur 6)
En travaux

Accédez à notre page dédiée au programme "Vista Verde" pour tout savoir sur la résidence, ses prestations et son quartier.
Autres biens disponibles
« Vista Verde », le nouveau programme immobilier
Toulouse est le berceau du projet immobilier neuf « Vista Verde ». 20 duplex et appartements neufs sont inclus dans ce programme. Allant du T3 au T5, ils peuvent servir de résidence principale ou secondaire et permettent aussi l'investissement locatif. Ils sont prévus fin mars 2026 et sont éligibles au dispositif Pinel.
Investissez malin !
Ce programme peut bénéficier de nombreux avantages financiers adaptés à votre projet immobilier neuf :
Je recherche un bien pour...






