Maison T3 n°V28 à Aucamville (31140)
Prix : nous consulter
Liva à Aucamville
À noter
- Aucamville
- Livraison 2ème trimestre 2028
- Résidence principale/secondaire
- Investissement locatif
- Votre suivi personnalisé Peterson.fr
- Garanti prix direct promoteur
Prestations et équipements
À propos du programme
Aux portes de Toulouse, la résidence Liva offre une opportunité de devenir propriétaire de sa maison à Aucamville, dans un environnement calme et résidentiel. Grâce au Bail Réel Solidaire (BRS), l’accession à la propriété devient plus accessible, avec des prix maîtrisés adaptés aux primo-accédants.
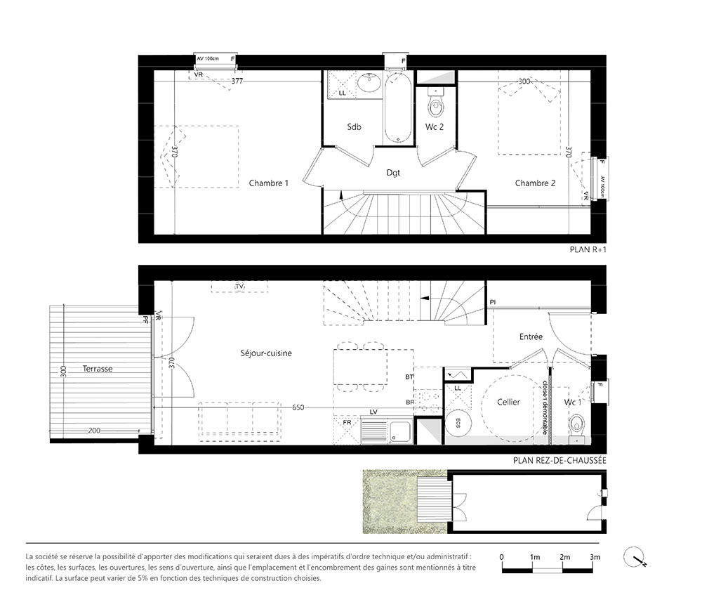
Le programme propose des maisons neuves de 3 et 4 pièces, conçues pour le confort au quotidien. Chaque maison dispose d’un jardin privatif, idéal pour une vie de famille, dans une commune offrant tous les services de proximité : écoles, commerces, équipements sportifs et transports.
Une adresse idéale pour acheter sa première maison, à proximité immédiate de la métropole toulousaine.
Aucamville
En travaux

Accédez à notre page dédiée au programme "Liva" pour tout savoir sur la résidence, ses prestations et son quartier.
Autres biens disponibles
Venez explorer « Liva »
C'est la commune de Aucamville qui abrite le projet immobilier « Liva ». Ce dernier offre des biens neufs. Ce projet contient 14 villas neuves qui se joignent au parc immobilier local. 14 d'entre elles restent encore disponibles. Elles sont de type T3 et T4 et peuvent faire office de résidence principale ou secondaire tout comme d'investissement locatif. Sachez que les logements sont éligibles au dispositif de droit commun et seront terminés fin juin 2028.
Investissez malin !
Ce programme peut bénéficier de nombreux avantages financiers adaptés à votre projet immobilier neuf :
Je recherche un bien pour...




