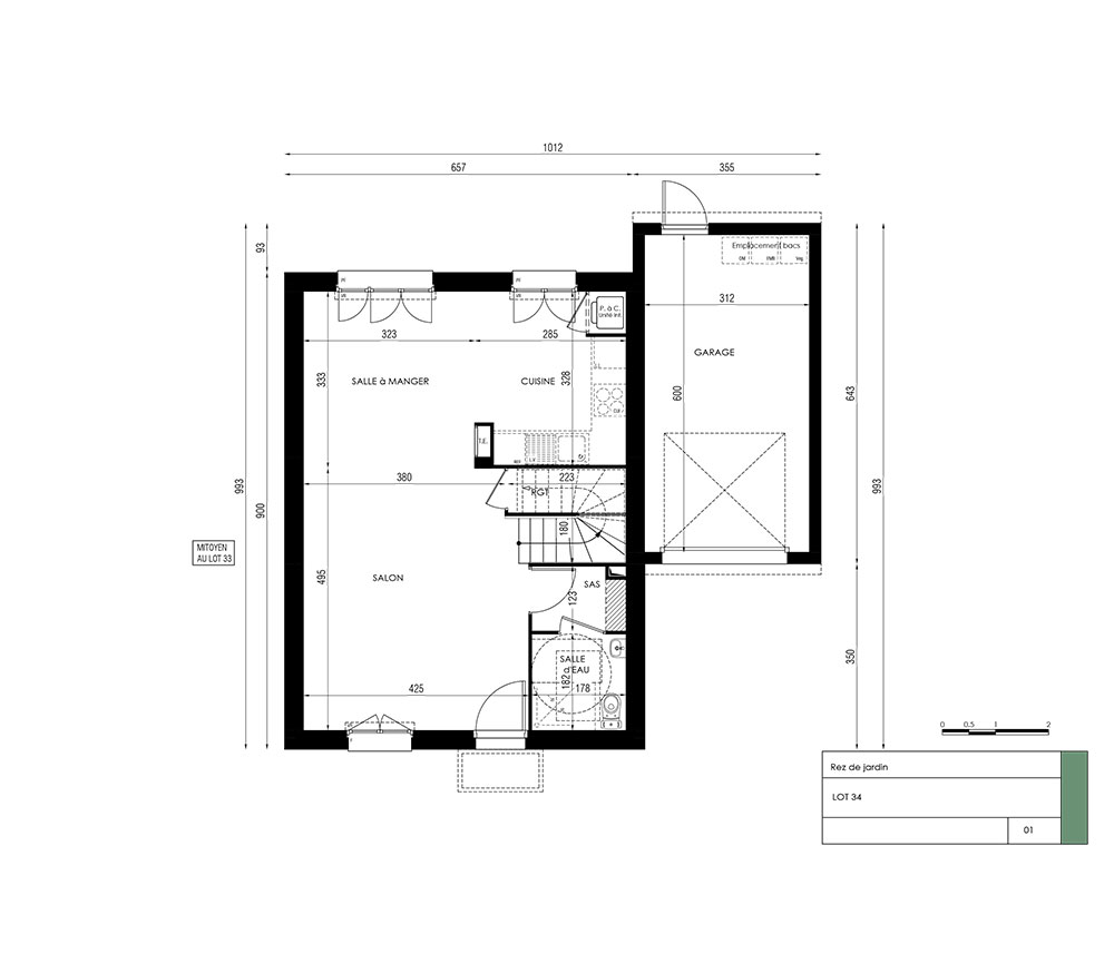
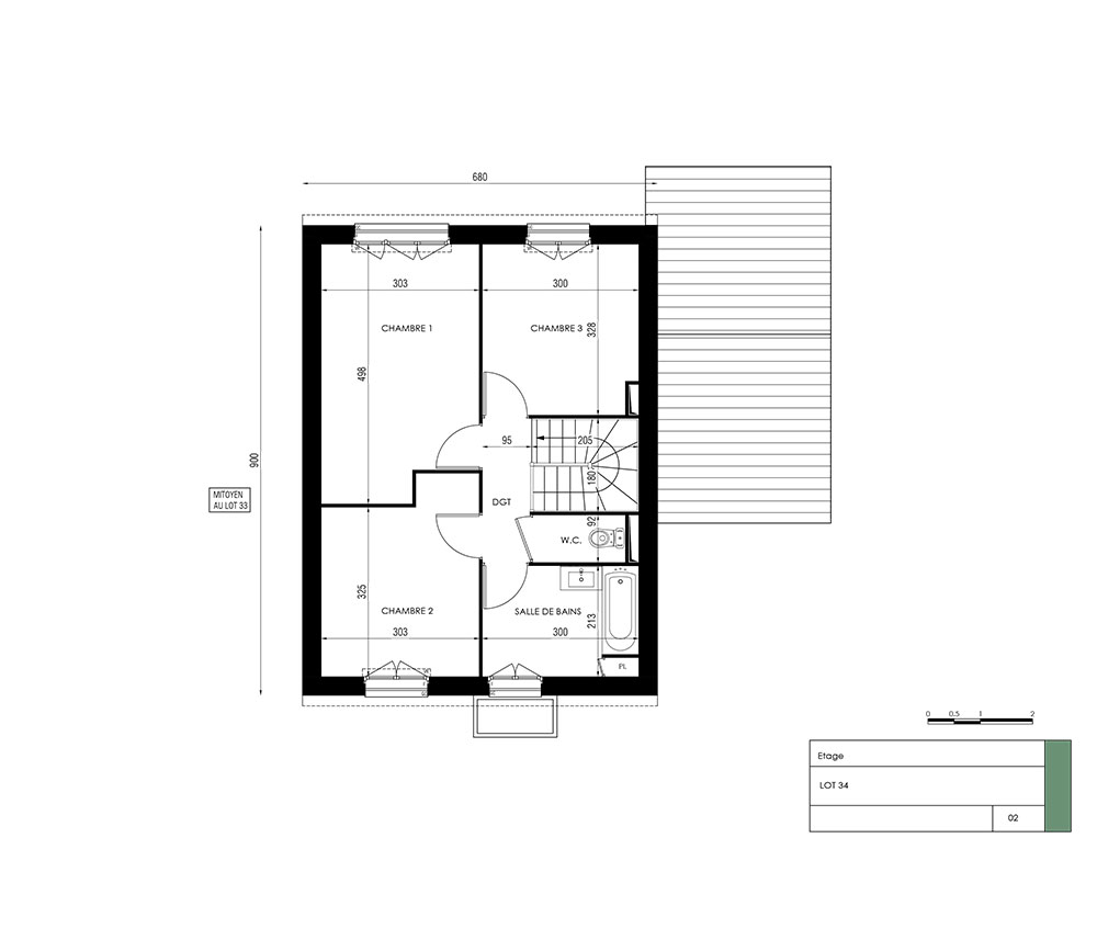
Maison T4 n°34 à Ollainville (91340)
Prix : nous consulter
Les Villas Aolini à Ollainville
À noter
- Ollainville
- Livraison 2ème trimestre 2028
- Résidence principale/secondaire
- Investissement locatif
- Votre suivi personnalisé Peterson.fr
- Garanti prix direct promoteur
À propos du programme
Un investissement pérenne dans un secteur à fort potentiel À seulement 35 à 40 minutes* de Paris par le RER C, Ollainville constitue un choix stratégique pour les investisseurs en quête de rendement sécurisé et de valorisation patrimoniale. Accessible, bien desservie et en plein développement, la commune attire un large public de locataires, notamment des familles et des actifs travaillant en Essonne ou en Île-de-France. Limitrophe d’Arpajon et intégrée à l’agglomération Cœur d’Essonne, Ollainville bénéficie d’un bassin d’emploi dynamique porté par la présence de grands groupes industriels et technologiques tels que Safran, Thalès, Danone, Renault ou encore Alcatel-Lucent, ainsi qu’un tissu dense de PME/PMI. Ce dynamisme économique alimente une demande locative constante, notamment pour des maisons modernes avec jardin et garage, un bien rare sur le marché. Les futurs locataires apprécient aussi l’environnement qualitatif du secteur : écoles, collège, commerces de proximité à pied, lycées et hôpital à Arpajon, ainsi qu’une offre variée de loisirs et d’espaces verts à deux pas.
Ollainville
En travaux

Accédez à notre page dédiée au programme "Les Villas Aolini" pour tout savoir sur la résidence, ses prestations et son quartier.
Autres biens disponibles
Aperçu du programme neuf « Les Villas Aolini »
Ollainville intègre le projet « Les Villas Aolini » à son parc immobilier. Ce programme comprend 30 maisons neuves, dont 30 sont encore disponibles pour l'instant. De type T4 et T5, elles s'adressent aux acheteurs séduits par l'investissement locatif comme aux personnes à la recherche de leur résidence principale ou secondaire. Les logements pourront être occupés fin juin 2028 et sont, par ailleurs, éligibles au dispositif de droit commun.









