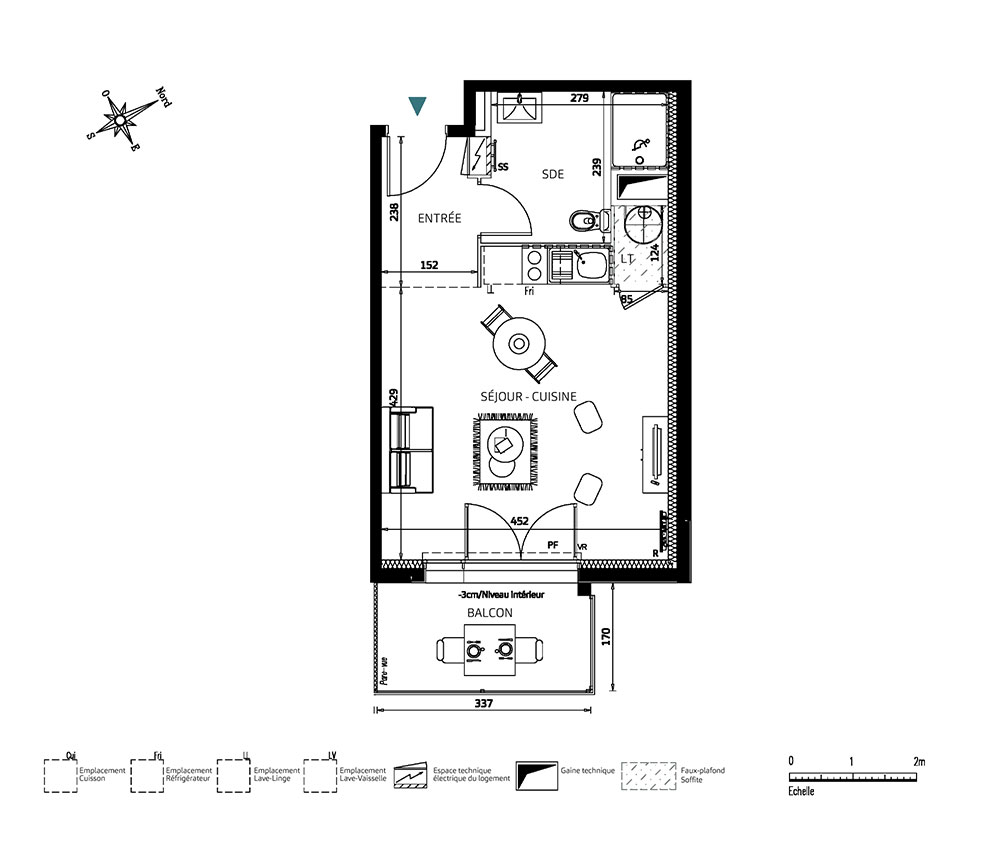
Appartement T1 n°1046 à Luisant (28600)
Prix : nous consulter
L'aparté à Luisant
À noter
- Luisant
- Livraison 1er trimestre 2030
- Résidence principale/secondaire
- Investissement locatif
- Votre suivi personnalisé Peterson.fr
- Garanti prix direct promoteur
Prestations et équipements
À propos du programme
Bienvenue à Luisant, au sein de la résidence l'Aparté !Nichée dans un environnement verdoyant, la commune de Luisant allie charme résidentiel et atouts d'une ville moderne. A deux pas du coeur de Chartres, elle offre à ses habitants une qualité de vie rare : commerces de proximité, établissements scolaires, activités sportives et culturelles accessibles facilement. Située au Sud du centre-ville de Luisant, la résidence l'Aparté incarne un art de vivre contemporain en harmonie avec son cadre verdoyant et résidentiel. Située dans un quartier calme, cette réalisation à l'architecture élégante et soignée offre un quotidien serein entre nature et commodités. Les studios sont conçus pour offrir des intérieurs lumineux et bien agencés, adaptés à tous les projets de vie.
Luisant
En travaux

Accédez à notre page dédiée au programme "L'aparté" pour tout savoir sur la résidence, ses prestations et son quartier.
