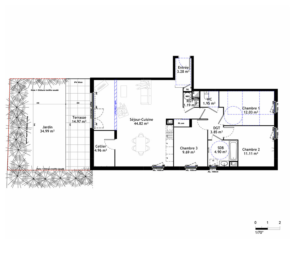
Appartement T4 n°1202 à Meximieux (01800)
Prix : nous consulter
Résidence Tandem à Meximieux
À noter
- Meximieux
- Livraison 3ème trimestre 2028
- Résidence principale/secondaire
- Investissement locatif
- Votre suivi personnalisé Peterson.fr
- Garanti prix direct promoteur
Prestations et équipements
À propos du programme
Tandem, le confort au coeur de la ville. Nexity vous présente sa nouvelle réalisation à Meximieux, idéalement située en plein centre-ville, à deux pas des commerces, des écoles et de toutes les commodités du quotidien. A seulement quelques minutes à pied de la gare, rejoignez Lyon en 30 minutes et profitez ainsi d'un cadre de vie paisible sans renoncer à la dynamique urbaine. Cette résidence à taille humaine propose des appartements spacieux, du 2 au 5 pièces, tous prolongés par un bel extérieur - terrasse ou balcon. La possibilité d'ajouter une ou deux places de stationnement, vous permet plus de confort au quotidien. Que vous soyez primo-accédant, jeune actif ou en quête d'un nouveau cocon familial, cette adresse est faite pour vous. Offrez vous un cadre de vie serein, entre ville et nature, dans une commune vivante et accueillante. Venez découvrir votre nouveau chez-vous à Meximieux !
Meximieux
En travaux

Accédez à notre page dédiée au programme "Résidence Tandem" pour tout savoir sur la résidence, ses prestations et son quartier.
Autres biens disponibles
Un nouveau programme immobilier avec « Résidence Tandem »
Meximieux reçoit le programme immobilier neuf « Résidence Tandem ». Ce projet immobilier propose 66 appartements, tous neufs, et 65 d'entre eux sont toujours disponibles. De type T2, T3 et T4, ils s'adressent aux personnes qui souhaitent s'orienter vers un investissement locatif ainsi qu'à celles qui cherchent une résidence principale ou secondaire. Au 3e trimestre 2028, les logements seront mis à disposition des habitants. De plus, sachez qu'ils sont éligibles au dispositif de droit commun.

