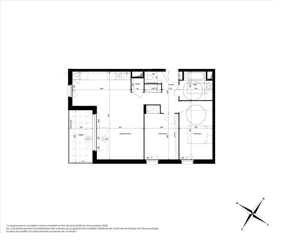
Appartement T3 n°105 à Maubec (38300)
Prix : nous consulter
Alma à Maubec
À noter
- Maubec
- Livraison 4ème trimestre 2028
- Résidence principale/secondaire
- Investissement locatif
- Votre suivi personnalisé Peterson.fr
- Garanti prix direct promoteur
À propos du programme
Portée par la croissance soutenue de l’agglomération de Bourgoin-Jallieu, Maubec s’inscrit au sein d’un bassin de vie particulièrement attractif. Avec près de 30 000 habitants et une position de troisième pôle urbain de l’Isère derrière Grenoble et Vienne, le territoire bénéficie d’un essor économique constant. Sa situation géographique privilégiée au carrefour de Lyon, Chambéry et Grenoble s’accompagne d’une connectivité remarquable : accès rapides aux autoroutes A43 et A48, réseau TER dense permettant de rejoindre Lyon Part-Dieu en moins de 30 minutes, et renforcement continu de l’offre de transport.
Cette dynamique s’appuie sur un tissu économique en expansion, marqué par l’extension des zones commerciales, l’ouverture récente d’un pôle hospitalier, ainsi que l’émergence d’un pôle de compétitivité dédié aux énergies renouvelables. Autant de leviers qui stimulent l’emploi, soutiennent la demande locative et favorisent la valorisation du patrimoine immobilier.
Maubec
En travaux

Accédez à notre page dédiée au programme "Alma" pour tout savoir sur la résidence, ses prestations et son quartier.




