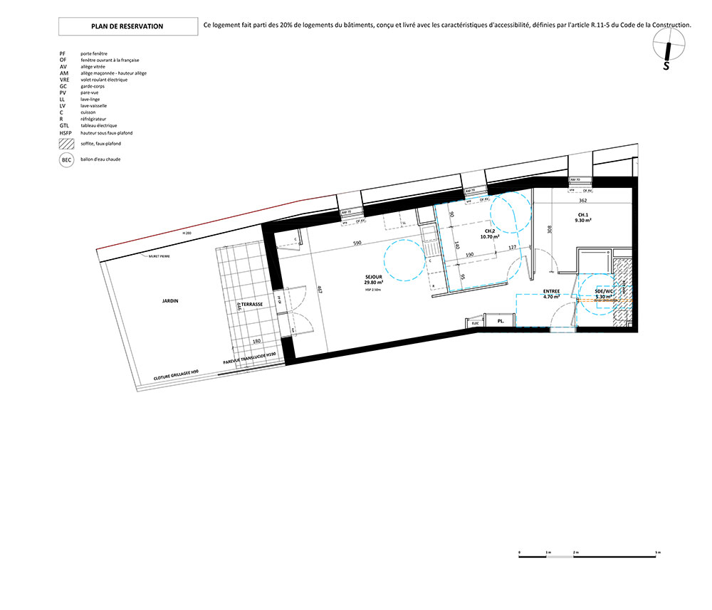
Appartement T3 n°A004 à Hillion (22120)
Prix : nous consulter
Clos Ronan à Hillion
À noter
- Hillion
- Résidence principale/secondaire
- Investissement locatif
- Votre suivi personnalisé Peterson.fr
- Garanti prix direct promoteur
Prestations et équipements
À propos du programme
Découvrez nos appartements neufs dans le quartier recherché de Saint-René à Hillion ! Le Clos Ronan est une nouvelle résidence intimiste nichée au cœur du bourg de Saint-René, à seulement 15 minutes de Saint-Brieuc et 10 minutes de Lamballe. Un cadre de vie privilégié entre nature, mer et services de proximité : commerces, écoles, collège, transports. La résidence propose 22 appartements du T1 Bis au T3, tous prolongés d’un balcon ou d’une terrasse, avec stationnement privatif, ascenseur, locaux vélos sécurisés et accès sécurisé par vidéophone. Les prestations intérieures sont axées sur le confort avec des équipements de dernière génération, des marques de qualité et des finitions soignées. Implanté dans les murs en pierre de l’ancien presbytère, le programme allie charme patrimonial et architecture contemporaine, dans un écrin paysager calme et convivial. Une adresse idéale pour devenir propriétaire grâce au PTZ ou investir en LMNP, et s’offrir une vie douce à la croisée de la baie de Saint-Brieuc et des plaisirs simples du quotidien.
Hillion

Accédez à notre page dédiée au programme "Clos Ronan" pour tout savoir sur la résidence, ses prestations et son quartier.
Autres biens disponibles
« Clos Ronan » : le nouveau programme immobilier se dévoile
« Clos Ronan » est un projet immobilier neuf situé à Hillion. Ce programme est composé de 8 appartements neufs dont 8 qui sont encore disponibles. Allant du T1 au T3, ils peuvent aussi bien convenir aux personnes projetant un investissement locatif que celles qui cherchent une résidence principale ou secondaire. Notez dès maintenant qu'ils sont éligibles aux dispositifs de droit commun et Jeanbrun.


