Appartement T2 n°206 à Locmaria-Plouzané (29280)
Prix : nous consulter
Ti Kalon à Locmaria-Plouzané
À noter
- Locmaria-Plouzané
- Livraison 2ème trimestre 2028
- Résidence principale/secondaire
- Investissement locatif
- Votre suivi personnalisé Peterson.fr
- Garanti prix direct promoteur
Prestations et équipements
À propos du programme
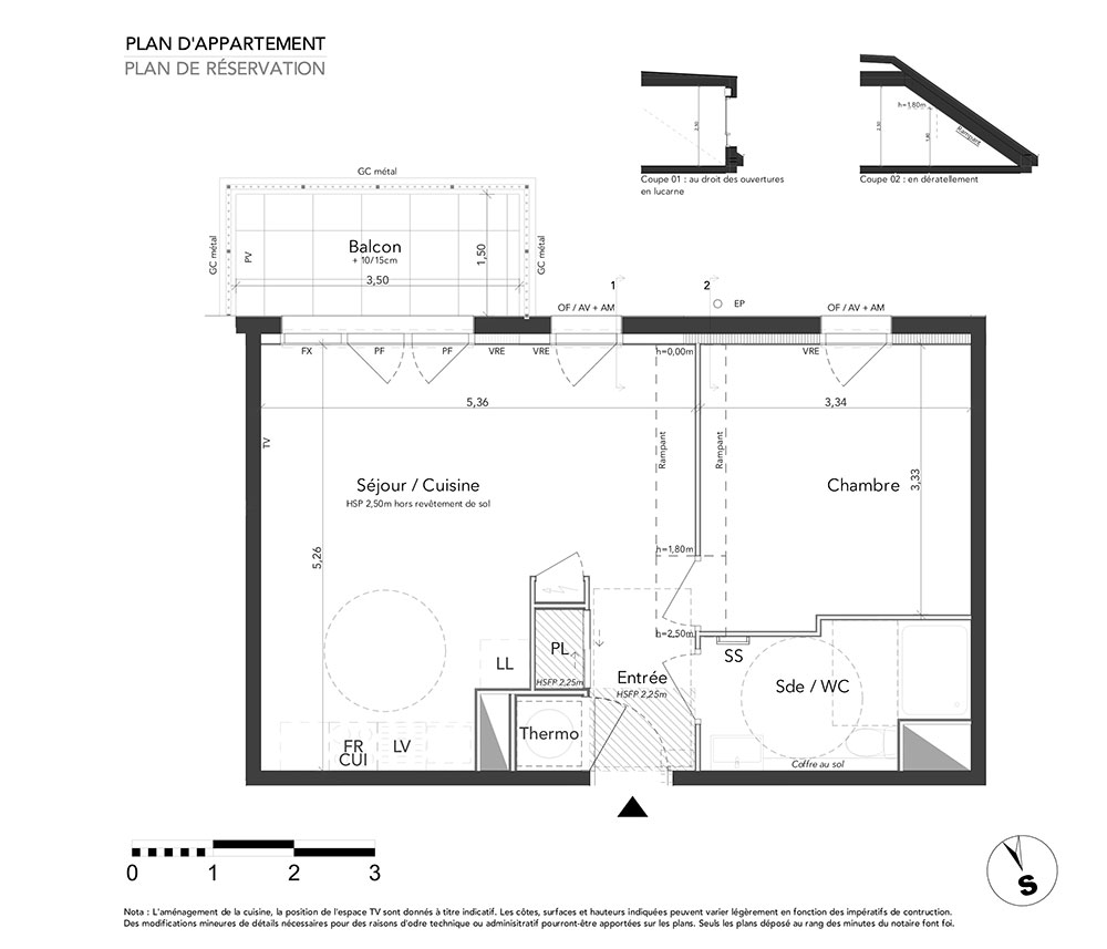
Découvrez en avant-première les appartements neufs de la résidence TI KALON, à Locmaria-Plouzané, du studio bis au 3 pièces. Idéalement située route de Ploumoguer, face à la mairie et à deux pas du centre-bourg, la résidence TI KALON propose 18 appartements au sein d’une résidence à taille humaine. Les logements, du studio bis au 3 pièces, offrent des agencements fonctionnels, une belle luminosité et un confort pensé pour le quotidien. Chaque appartement dispose d’un espace extérieur privatif — balcon, terrasse et/ou jardin — pour profiter pleinement de l’environnement résidentiel. Commune littorale du Pays d’Iroise, Locmaria-Plouzané se situe à 15 km de Brest et séduit par son équilibre entre dynamisme et qualité de vie. Les commerces, services et équipements sont accessibles à pied. Les plages de Trégana, Portez et Porsmilin sont accessibles en 7 minutes en voiture ou 12 minutes à vélo. Conforme à la réglementation environnementale RE2020 – seuil 2025, la résidence TI KALON garantit des performances énergétiques actuelles et un confort durable. Elle bénéficie de stationnements extérieurs, d’un local vélos, et de prestations intérieures de qualité dans une architecture soignée et intégrée à son environnement.
Locmaria-Plouzané
En travaux

Accédez à notre page dédiée au programme "Ti Kalon" pour tout savoir sur la résidence, ses prestations et son quartier.
Autres biens disponibles
Introduction au programme neuf « Ti Kalon »
« Ti Kalon » est un projet immobilier neuf situé à Locmaria-Plouzané. 16 appartements neufs sont inclus dans ce programme. À l'heure actuelle, 16 d'entre eux restent encore sur le marché. Allant du T1 au T3, ils correspondront aux exigences des intéressés par l'investissement locatif tout comme à celles des personnes à la recherche d'une résidence principale ou secondaire. Au deuxième trimestre 2028, les logements seront mis à disposition et sachez qu'ils sont éligibles aux dispositifs Jeanbrun et de droit commun.
