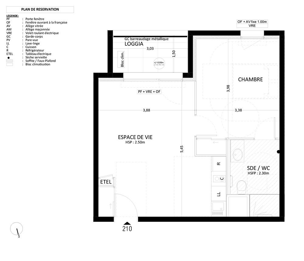
Appartement T2 n°210 à Sarlat-la-Canéda (24200)
Prix : nous consulter
Les Jardins de la Boétie - Résidence Seniors à Sarlat-la-Canéda
À noter
- Sarlat-la-Canéda
- Livraison 1er trimestre 2028
- Investissement locatif
- Votre suivi personnalisé Peterson.fr
- Garanti prix direct promoteur
Ce programme propose des biens éligibles aux dispositifs de défiscalisation suivant :
À propos du programme
Investissez dans notre résidence LES JARDINS DE LA BOETIE, un investissement idéal pour se constituer des revenus complémentaires et préparer sa retraite. Composée d’appartements du STUDIO au 3 PIÈCES, elle est idéalement située entre la vallée de la Dordogne et la vallée de la Vézère, dans le Périgord Noir et à proximité du coeur de ville. Cet investissement permet de profiter de tous les AVANTAGES DU STATUT LMNP (Loueur Meublé Non Professionnel) : exonération de la TVA *, loyers GARANTIS par bail commercial de 12 ans minimum, rentabilité annuelle attractive, gestion locative sereine et sans frais par un gestionnaire unique « Espace & Vie».

Accédez à notre page dédiée au programme "Les Jardins de la Boétie - Résidence Seniors" pour tout savoir sur la résidence, ses prestations et son quartier.
Autres biens disponibles
« Les Jardins de la Boétie - Résidence Seniors » : présentation du nouveau projet immobilier
Sarlat-la-Canéda dispose du programme immobilier neuf « Les Jardins de la Boétie - Résidence Seniors ». 70 sont encore sur le marché sur les 70 appartements neufs qui sont proposés dans ce projet. De type Studio, T1, T2 et T3, ils conviendront aux attentes des personnes qui veulent se diriger vers un investissement locatif. Éligibles au dispositif LMNP (loueur en meublé non professionnel), les logements seront livrés fin mars 2028.



