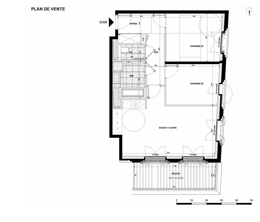
Appartement T3 n°C306 à Orléans (45100)
Prix : nous consulter
Héritage à Orléans
À noter
- Orléans
- Livraison 4ème trimestre 2028
- Résidence principale/secondaire
- Investissement locatif
- Votre suivi personnalisé Peterson.fr
- Garanti prix direct promoteur
Prestations et équipements
À propos du programme
Située à deux pas de la Loire, la résidence HÉRITAGE bénéficie d’un emplacement urbain et patrimonial remarquable. Disponibles du studio au 5 pièces, ces appartements de standing disposent de prestations haut de gamme en harmonie avec la qualité architecturale de la résidence. Lumineux et spacieux, les appartements sont baignés de lumière naturelle. Dès les deux pièces, ils profitent d’une double ou triple orientation. Pour un bien-être optimum, de généreux extérieurs privatifs prolongent tous les espaces à vivre. Dans les derniers étages, de vastes terrasses offrent des vues panoramiques sur la ville et les bâtiments classés. La résidence HÉRITAGE a fait l’objet d’un aménagement paysager qualitatif que l’on retrouve en cœur d’îlot jusqu’aux toitures.
Orléans
En travaux

Accédez à notre page dédiée au programme "Héritage" pour tout savoir sur la résidence, ses prestations et son quartier.
Autres biens disponibles
Découvrez le nouveau programme immobilier « Héritage »
Orléans accueille le projet immobilier neuf « Héritage ». Au sein de ce projet, on peut retrouver 52 appartements neufs, dont 52 sont encore sur le marché. De type Studio, T2, T3 et T4, ils sont propices à l'investissement locatif mais peuvent également convenir pour une résidence principale ou secondaire. La livraison est annoncée à la fin de l'année 2028 et les logements sont éligibles aux dispositifs Jeanbrun et de droit commun.





