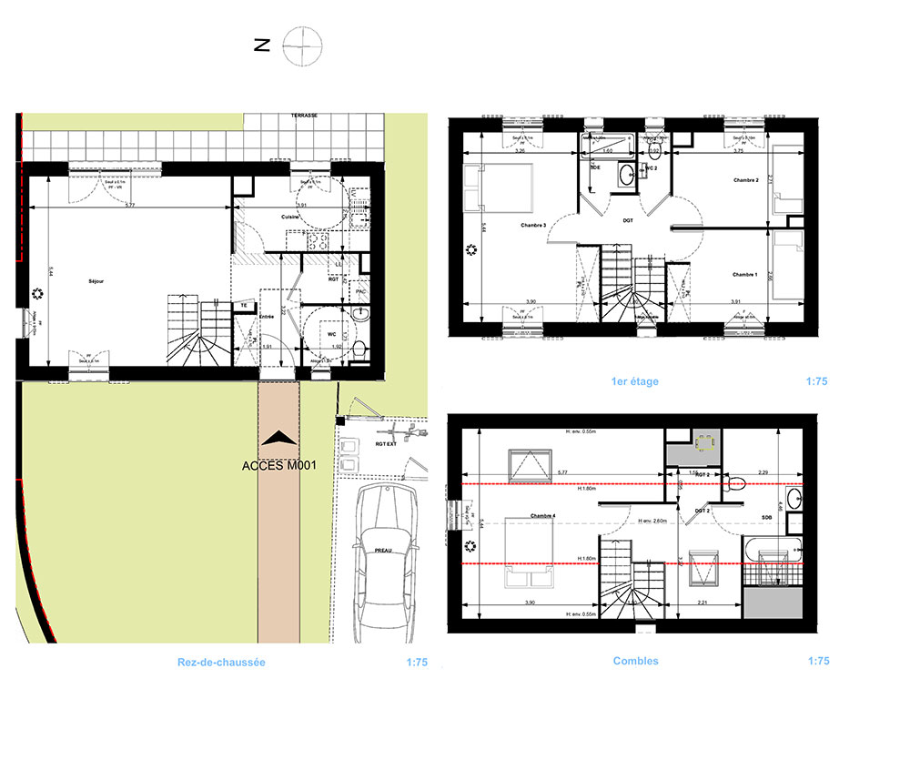
Maison T5 n°1 à Toussus-le-Noble (78117)
Prix : nous consulter
La Ferme à Toussus-le-Noble
À noter
- Toussus-le-Noble
- Livraison 3ème trimestre 2028
- Résidence principale/secondaire
- Investissement locatif
- Votre suivi personnalisé Peterson.fr
- Garanti prix direct promoteur
À propos du programme
Devenez propriétaire et profitez d'un cadre de vie paisible aux portes de Versailles ! Idéalement située au sein de Versailles Grand Parc, à la lisière de la vallée de Chevreuse et des pôles économiques de Saint-Quentin-en-Yvelines et de Paris-Saclay, profitez d'un cadre de vie pratique et agréable !Un arrêt de bus tout proche vous relie directement à la gare de Saint-Rémy-lès-Chevreuse (RER B) en 20 minutes et à celle de Versailles Rive-Gauche (RER C) en 35 minutes, vous permettant de rejoindre Paris en environ 35 minutes. Et pour vos déplacements futurs, la future gare de la ligne 18 du Grand Paris Express ne sera qu'à 8 minutes en voiture ! Sur un site de caractère au passé agricole et tourné vers la plaine de Toussus-le-Noble, découvrez « La Ferme », un domaine intimiste au coeur d'un environnement verdoyant. Il est composé de 32 maisons neuves confortables, de 3 à 5 chambres, ainsi que d'appartements 3P et duplex 4P, aux prestations de qualité. Chaque maison se pare d'une architecture élégante et profite d'un beau jardin privatif. En co-promotion avec ATOME
Toussus-le-Noble
En travaux

Accédez à notre page dédiée au programme "La Ferme" pour tout savoir sur la résidence, ses prestations et son quartier.
Autres biens disponibles
Introduction au programme neuf « La Ferme »
Le programme immobilier neuf « La Ferme » se situe à Toussus-le-Noble. Au cœur de ce projet, on retrouve 25 maisons et appartements et duplex neufs, dont 22 sont toujours sur le marché. Ils peuvent tout à fait faire office de résidence principale ou secondaire ou même d'investissement locatif et sont de type T3, T4, T5 et T6. Éligibles au dispositif de droit commun, les biens devraient être achevés au 2e trimestre 2028.






