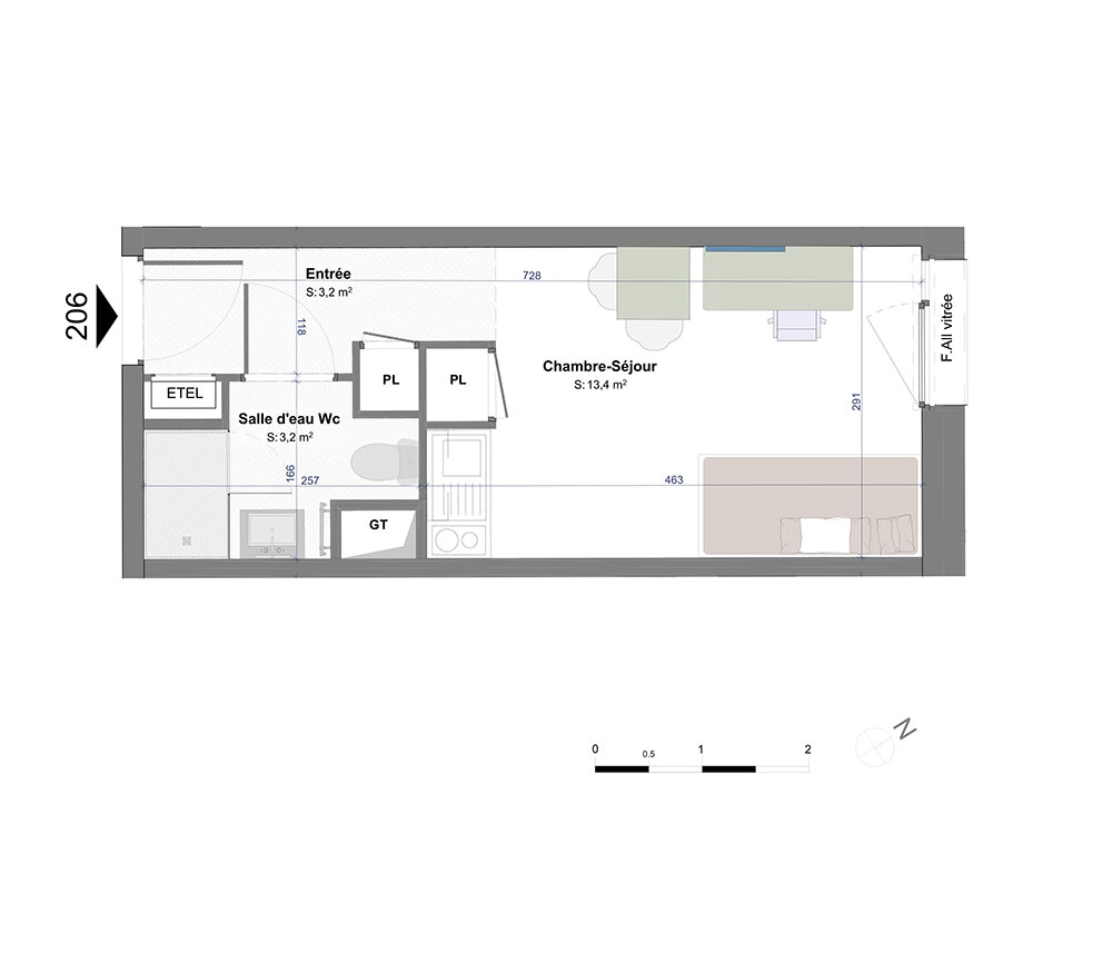
Appartement T1 n°206 à Gières (38610)
Prix : nous consulter
Logifac - Gières - Altaïr à Gières
À noter
- Gières
- Livraison 3ème trimestre 2028
- Investissement locatif
- Votre suivi personnalisé Peterson.fr
- Garanti prix direct promoteur
Ce programme propose des biens éligibles aux dispositifs de défiscalisation suivant :
À propos du programme
Idéalement située le long de la rue de la Condamine à Gières, en lien direct avec le campus universitaire de Grenoble, cette résidence étudiante propose un cadre moderne, sécurisé et parfaitement intégré à son environnement.
L’implantation des deux bâtiments en L, s’élevant de 3 à 5 étages, crée une volumétrie harmonieuse et contemporaine, en cohérence avec le tissu urbain alentour. Le traitement architectural alterne décrochés, matériaux contrastés et jeux d’ouvertures, apportant une véritable signature visuelle.
La résidence, signée par le promoteur MV Résidences et ses 25 ans d’expérience dans le métier, comptera 183 appartements étudiants, répartis majoritairement aux étages, avec une vingtaine de logements en rez-de-chaussée. Chaque unité est conçue pour allier confort, fonctionnalité et performance d’usage. Des espaces techniques sont prévus pour assurer une gestion efficace : bureaux, lingerie, salle de pause...
Le site sera exploité par LOGIFAC, gestionnaire reconnu depuis plus de 35 ans dans l’univers du logement étudiant, garantissant une qualité de service constante pour les résidents comme pour les investisseurs. LOGIFAC fait partie des acteurs de référence du logement étudiant en France. À travers les réseaux LOGIFAC et FAC-HABITAT, le groupe exploite environ 150 résidences étudiantes sur l’ensemble du territoire, ce qui en fait l’un des premiers opérateurs français du secteur, si ce n'est le leader.
Le groupe se distingue par une politique de sélection particulièrement exigeante : malgré un volume élevé de sollicitations, LOGIFAC ne retient chaque année qu’un nombre très limité de nouveaux projets, généralement deux à trois résidences, privilégiant la qualité des emplacements, la cohérence des programmes et la pérennité de l’exploitation.
Son Président, Lionel LERISSEL, est également Directeur général de la SMERRA et Président de l’AIRES (Association Interprofessionnelle des Résidences Étudiantes et Services), l’organisation professionnelle de référence du secteur, fondée en 1994, qui fédère promoteurs, exploitants et gestionnaires de résidences étudiantes.

Accédez à notre page dédiée au programme "Logifac - Gières - Altaïr" pour tout savoir sur la résidence, ses prestations et son quartier.
Autres biens disponibles
Tout savoir sur le programme neuf « Logifac - Gières - Altaïr »
« Logifac - Gières - Altaïr » est un projet immobilier dans le neuf à Gières. Ce programme immobilier présente 23 appartements, tous neufs, et 23 d'entre eux sont encore sur le marché. Ils sont de type Studio et T1 et adaptés à un investissement locatif. Éligibles au dispositif LMNP (loueur en meublé non professionnel), les logements seront livrés fin septembre 2028.




