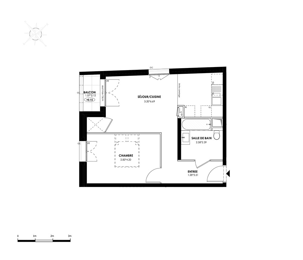
Appartement T2 n°A41 à Puteaux (92800)
Prix : nous consulter
Terrasses Belles Vues à Puteaux
À noter
- Puteaux
- Résidence principale/secondaire
- Investissement locatif
- Votre suivi personnalisé Peterson.fr
- Garanti prix direct promoteur
Prestations et équipements
À propos du programme
Vue sur Paris, à deux pas de la gare de Puteaux.De belles vues dégagées sur la Tour Eiffel. Sur les hauteurs, découvrez une adresse rare à l'élégance Art Déco, signée par l'agence Geru. Cette résidence confidentielle propose des appartements du studio au 6 pièces duplex, prolongés de jardins, terrasses ou rooftops offrant pour certains des panoramas spectaculaires sur Paris et la Tour Eiffel. Le raffinement des prestations, la modernité du confort et le soin porté à chaque détail composent un art de vivre unique, à proximité des parcs Offenbach, du Belvédère et du Moulin, du centre-ville et de La Défense. Un lieu d'exception pour habiter ou investir durablement à Puteaux.
Puteaux

Accédez à notre page dédiée au programme "Terrasses Belles Vues" pour tout savoir sur la résidence, ses prestations et son quartier.
Autres biens disponibles
Le projet « Terrasses Belles Vues » s'installe dans le marché immobilier local
Puteaux abrite le programme immobilier neuf « Terrasses Belles Vues ». On peut compter au sein de ce programme 17 maisons et appartements neufs. 17 de ces derniers sont, quant à eux, toujours sur le marché. Allant du T1 au T5, ils conviendront aussi bien aux besoins d'une recherche en résidence principale ou secondaire ainsi qu'à ceux d'un investissement locatif. Sachez qu'ils sont éligibles au dispositif de droit commun.




