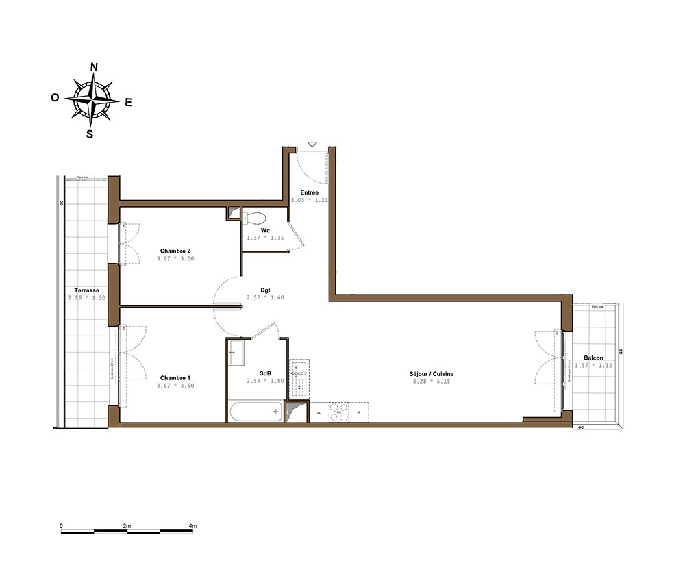
Appartement T3 n°A102 à Dugny (93440)
Prix : nous consulter
Résidence de l'Ormeteau à Dugny
À noter
- Dugny
- Livraison 1er trimestre 2029
- Résidence principale/secondaire
- Investissement locatif
- Votre suivi personnalisé Peterson.fr
- Garanti prix direct promoteur
À propos du programme
Bientôt à Dugny, découvrez une adresse d'exception alliant nature et effervescence, à moins de 15 km de Paris. Cette réalisation à l'architecture séquencée et élégante dialogue parfaitement avec son cœur d'îlot paysager de 22 arbres. Découvrez des appartements du 2 au 5 pièces, incluant des duplex, conçus pour maximiser la lumière et le confort de vie. Chaque logement profite d'un espace extérieur privatif (jardin, balcon ou terrasse). Pour votre sérénité : 500 m2 de commerces en pied d'immeuble et un parking sécurisé en sous-sol. Vivez à 8 min à pied du parc Georges Valbon, l'un des plus grands poumons verts d'Île-de-France. Ici, tout se fait à pied : écoles, services et loisirs sont accessibles en quelques minutes. Profitez d'une mobilité optimale avec le bus au pied de la résidence, le T11, le RER B et l'arrivée prochaine des lignes 16 et 17 du Grand Paris Express.
Dugny
En travaux

Accédez à notre page dédiée au programme "Résidence de l'Ormeteau" pour tout savoir sur la résidence, ses prestations et son quartier.
Autres biens disponibles
« Résidence de l'Ormeteau » : présentation du nouveau projet immobilier
Le programme immobilier neuf « Résidence de l'Ormeteau » se situe à Dugny. Au cœur de ce programme, on retrouve 119 appartements neufs, dont 119 sont encore disponibles. De type T2, T3, T4 et T5, ils conviendront tant à un investissement locatif qu'à une résidence principale ou secondaire. Les logements sont éligibles au dispositif de droit commun et sont prévus au 1er trimestre 2029.
Investissez malin !
Ce programme peut bénéficier de nombreux avantages financiers adaptés à votre projet immobilier neuf :
Je recherche un bien pour...



