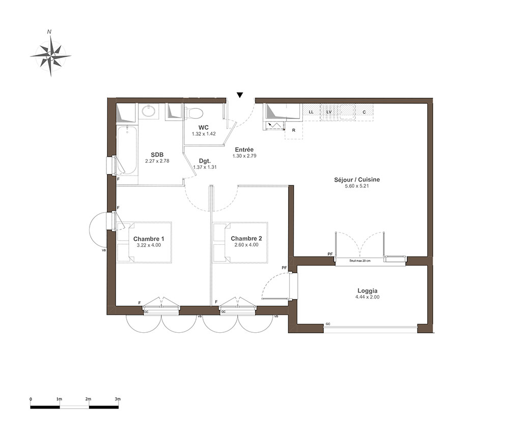
Appartement T3 n°A303 à Port-de-Bouc (13110)
Prix : nous consulter
Esprit Marina à Port-de-Bouc
À noter
- Port-de-Bouc
- Livraison 4ème trimestre 2028
- Résidence principale/secondaire
- Investissement locatif
- Votre suivi personnalisé Peterson.fr
- Garanti prix direct promoteur
À propos du programme
Une architecture méditerranéenne raffinée et parfaitement intégrée dans son environnement naturel. La résidence s'intègre harmonieusement à son cadre en plein essor, entre le port de plaisance et le centre-ville de Port-de-Bouc. Son design inspiré du style provençal se distingue par une utilisation de matériaux de qualité, des façades en pierre claire, des volets colorés et des toitures en tuiles canal vieillies, créant une atmosphère chaleureuse et accueillante. Les appartements, du 2 au 4 pièces, sont conçus pour offrir des espaces de vie optimisés, lumineux et confortables. La plupart des logements bénéficient d'un extérieur privatif sous forme de jardin individuel, balcon, loggia ou terrasse. Certains appartements profitent même d'une double orientation pour une luminosité optimale et une ventilation naturelle tout au long de l'année.
Port-de-Bouc
En travaux

Accédez à notre page dédiée au programme "Esprit Marina" pour tout savoir sur la résidence, ses prestations et son quartier.
Autres biens disponibles
Tout savoir pour profiter du nouveau projet immobilier « Esprit Marina »
Port-de-Bouc intègre le projet « Esprit Marina » à son parc immobilier. Ce nouveau programme comprend, sur un total de 46 appartements neufs, 46 lots encore disponibles. Allant du T2 au T4, ils conviendront autant à un investissement locatif qu'à une résidence principale ou secondaire. Éligibles au dispositif de droit commun, les logements seront livrés à la fin de l'année 2028.
Investissez malin !
Ce programme peut bénéficier de nombreux avantages financiers adaptés à votre projet immobilier neuf :
Je recherche un bien pour...




