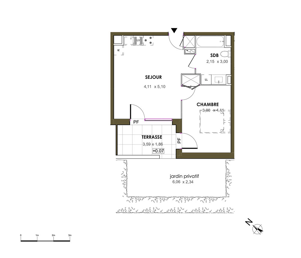
Appartement T2 n°5 à Agde (34300)
Prix : nous consulter
Le Saphir à Agde
Appartement
T2 / F2 / 2 pièces
41,1 m² habitables
RDC
Sud-ouest
1 chambre
Jardin 14 m²
Terrasse 7 m²
À noter
- Agde
- Livraison 4ème trimestre 2027
- Résidence principale/secondaire
- Investissement locatif
- Votre suivi personnalisé Peterson.fr
- Garanti prix direct promoteur
Prestations et équipements
À propos du programme
.
Agde
En travaux
Livraison 4ème trimestre 2027

Accédez à notre page dédiée au programme "Le Saphir" pour tout savoir sur la résidence, ses prestations et son quartier.
Autres biens disponibles
Le programme neuf Le Saphir, situé dans la ville de Agde, est composé de 27 logements neufs de type appartement répartis en T2, T3, livrés au 4ème trimestre 2027 et destinés aux différents projets : résidence principale, résidence secondaire et investissement locatif. Ce programme neuf est éligible au dispositif Droit Commun pour habiter ou investir à Agde.
N° de lot
Surface
Commodités
Étage
Exposition
N° de lot
Surface
Commodités
Étage
Exposition


