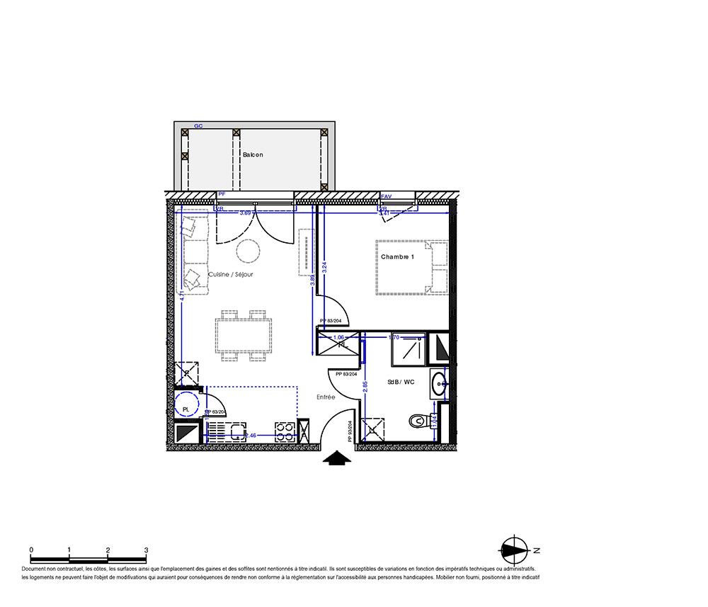
Appartement T2 n°3105 à Montussan (33450)
Prix : nous consulter
Les Lisieres De La Loubere à Montussan
À noter
- Montussan
- Livraison 4ème trimestre 2028
- Résidence principale/secondaire
- Investissement locatif
- Votre suivi personnalisé Peterson.fr
- Garanti prix direct promoteur
Prestations et équipements
À propos du programme
Appartements Neufs à Montussan, entre confort, Nature et LumièreDécouvrez des appartements neufs du studio au 3 pièces dans une résidence intimiste entourée d'un parc arboré. Répartis dans deux bâtiments de 12 et 18 logements, les appartements offrent des espaces optimisés, lumineux et prolongés par un balcon ou un jardin privatif. Pensée pour les familles, la résidence intègre également un espace de jeux sécurisé pour enfants, au coeur d'un environnement naturel préservé. Un cadre paisible et durable, idéal pour vivre ou investir à Montussan. Située à l'est de Bordeaux, Montussan séduit par son charme résidentiel et son cadre verdoyant entre vignes et forêts. La commune offre une qualité de vie recherchée, avec ses commerces de proximité, ses équipements et un accès rapide aux pôles économiques de la métropole. Un emplacement idéal pour concilier tranquillité et dynamisme au quotidien.
Montussan
En travaux

Accédez à notre page dédiée au programme "Les Lisieres De La Loubere" pour tout savoir sur la résidence, ses prestations et son quartier.

