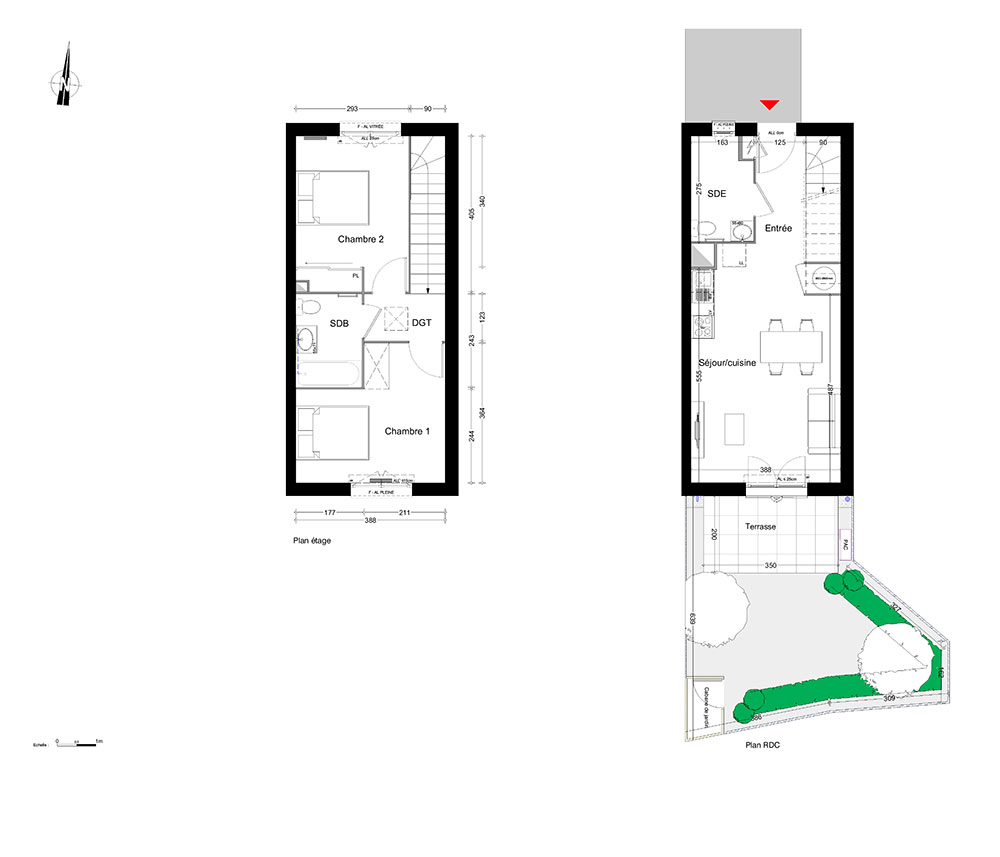
Maison T3 n°128 à Aulnat (63510)
Prix : nous consulter
Domaine Des Lumières à Aulnat
À noter
- Aulnat
- Livraison 3ème trimestre 2028
- Résidence principale/secondaire
- Investissement locatif
- Votre suivi personnalisé Peterson.fr
- Garanti prix direct promoteur
Prestations et équipements
À propos du programme
Bénéficiez des frais de notaire OFFERTS. Découvrez la maquette du projet dans notre espace de vente, au 56 avenue de la République à Clermont-Ferrand. Profitez d'un cadre de vie privilégié à Aulnat, à seulement 15 minutes de Clermont Ferrand. Grâce au projet d'aménagement INSPIRE et à la future ligne B reliant Aulnat à la place de Jaude en 30 minutes, le secteur gagne en dynamisme. Au coeur d'un quartier pavillonnaire calme et familial, notre résidence "Domaine des Lumières" s'insère dans un environnement ouvert avec vue sur la chaîne des Puys. Découvrez des maisons lumineuses en duplex, de 3 à 5 pièces, conçues pour répondre à tous les besoins du quotidien. Chaque maison dispose d'un jardin privatif ainsi que d'une place de stationnement ou d'un box fermé. Une adresse idéale à 10 minutes à pied du centre-ville d'Aulnat, où vous profiterez de tous les commerces essentiels et des services de proximité.
Aulnat
En travaux

Accédez à notre page dédiée au programme "Domaine Des Lumières" pour tout savoir sur la résidence, ses prestations et son quartier.


