Residence LamartineResidence LamartineResidence Lamartine
Residence Lamartine
Residence Lamartine
Residence Lamartine

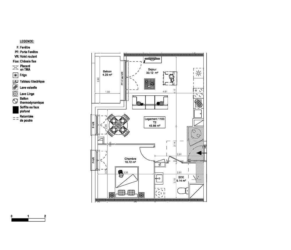
Appartement T2 n°1103 à Tarbes (65000)

Prix : nous consulter

Tarbes (65000)

Residence Lamartine à Tarbes

Appartement
T2 / F2 / 2 pièces
45,98 m² habitables
1er étage
Est
1 chambre
Balcon 4 m²

À noter

  • Tarbes
  • Livraison 2ème trimestre 2028
  • Résidence principale/secondaire
  • Investissement locatif
  • Votre suivi personnalisé Peterson.fr
  • Garanti prix direct promoteur

Prestations et équipements

Terrasse / Balcon

À propos du programme

Découvrez notre nouvelle résidence idéalement située en plein centre de Tarbes. Avec seulement 5 lots à la vente en 2 et 3 pièces tous situés au 1er étage, cette résidence vous offrira confort, modernité et accessibilité. Implantée dans l'une des meilleures adresses de Tarbes, la résidence Lamartine bénéficie d'un emplacement premium, face aux Halles Brauhauban. Un cadre de vie recherché, alliant animation urbaine, confort quotidien et valeur patrimoniale durable.

En travaux

Livraison 2ème trimestre 2028

Accédez à notre page dédiée au programme "Residence Lamartine" pour tout savoir sur la résidence, ses prestations et son quartier.

Autres biens disponibles

Le programme neuf Residence Lamartine, situé dans la ville de Tarbes, est composé de 5 logements neufs de type appartement répartis en T2, T3, livrés au 2ème trimestre 2028 et destinés aux différents projets : investissement locatif, résidence secondaire et résidence principale. Ce programme neuf est éligible au dispositif Droit Commun pour habiter ou investir à Tarbes.
Appartement 2 pièces
3 biens disponibles
N° de lot
Surface
Commodités
Étage
Exposition
Lot n°11011101
46 m²
Terrasse / Balcon
Étage 1
Exposition : Nord-estNord-est
Lot n°11021102
51 m²
Terrasse / Balcon
Étage 1
Exposition : SudSud
Lot n°11051105
36 m²
Terrasse / Balcon
Étage 1
Exposition : NordNord
N° de lot
Surface
Commodités
Étage
Exposition
Lot n°11041104
61 m²
Terrasse / Balcon
Étage 1
Exposition : Nord-estNord-est