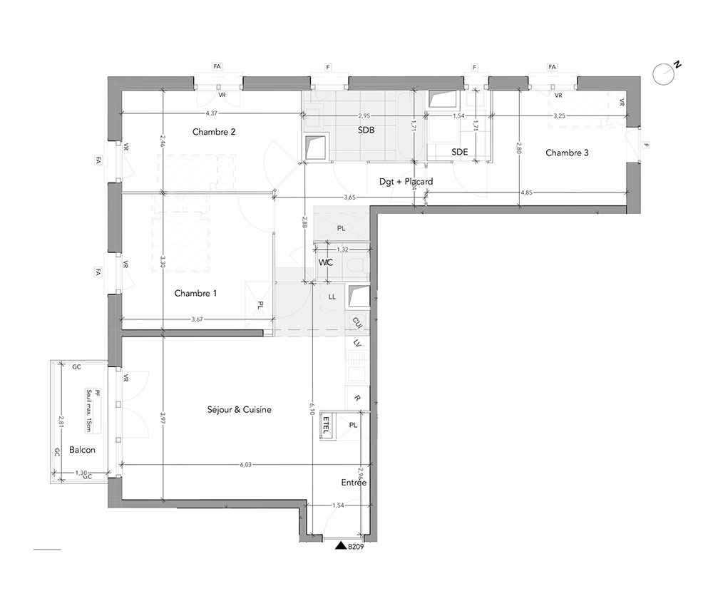
Appartement T4 n°B209 à Mantes-la-Jolie (78200)
Prix : nous consulter
Confidence à Mantes-la-Jolie
Appartement
T4 / F4 / 4 pièces
75,41 m² habitables
2ème étage
Sud-ouest
3 chambres
Balcon 4 m²
À noter
- Mantes-la-Jolie
- Votre suivi personnalisé Peterson.fr
- Garanti prix direct promoteur
Prestations et équipements
À propos du programme
À seulement 35 min* de Paris Saint-Lazare (Ligne J), European Homes signe une nouvelle réalisation au 43-47 rue de Verdun. Profitez d'une connexion exceptionnelle avec deux gares à proximité immédiate, accueillant le futur RER E et la ligne 15 à l'horizon 2027***. Vivez un quotidien facilité : écoles (Ferdinand Buisson, Chénier), complexes sportifs (Dantan, David) et commerces sont accessibles dans un rayon de 500 m*. L’A13 (gratuite vers Paris) et l’A14 placent La Défense à moins de 45 min*.
Mantes-la-Jolie

Accédez à notre page dédiée au programme "Confidence" pour tout savoir sur la résidence, ses prestations et son quartier.
Autres biens disponibles
Le programme neuf Confidence, situé dans la ville de Mantes-la-Jolie, est composé de 37 logements neufs de type appartement répartis en T2, T3, T4 et destinés au projet : . Ce programme neuf est éligible au dispositif Jeanbrun à Mantes-la-Jolie.
N° de lot
Surface
Commodités
Étage
Exposition
N° de lot
Surface
Commodités
Étage
Exposition
N° de lot
Surface
Commodités
Étage
Exposition


