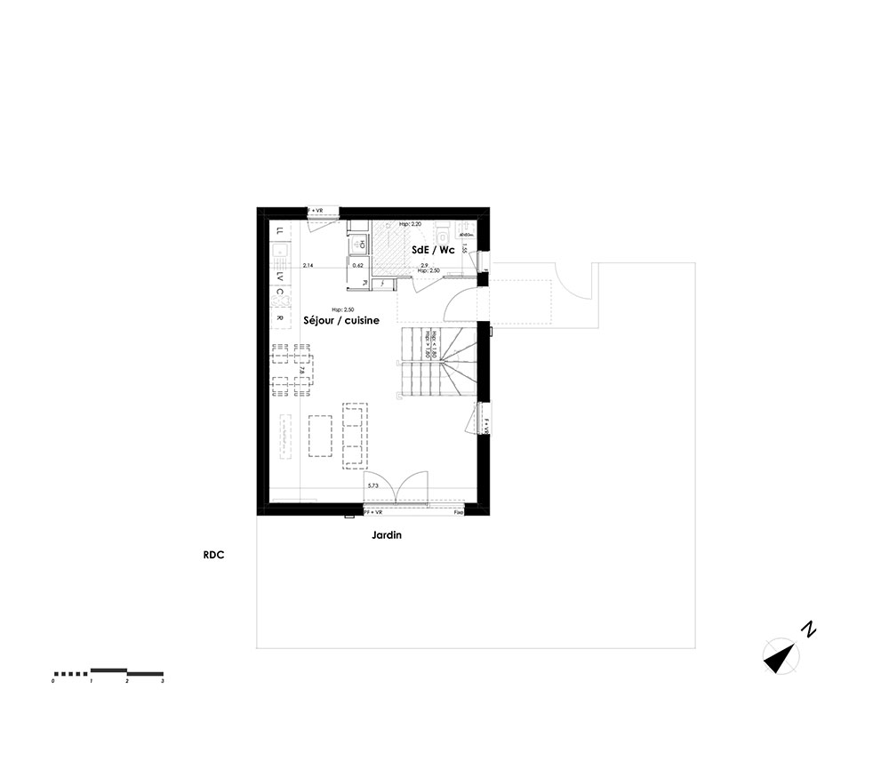
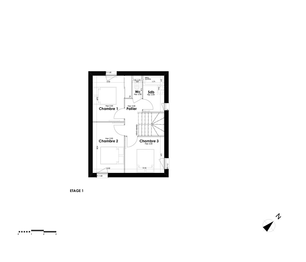
Maison T4 n°3003 à Targon (33760)
Prix : nous consulter
Domaine De L'entre-deux-mers à Targon
À noter
- Targon
- Livraison 4ème trimestre 2026
- Résidence principale/secondaire
- Investissement locatif
- Votre suivi personnalisé Peterson.fr
- Garanti prix direct promoteur
Prestations et équipements
À propos du programme
Confort moderne et cadre de vie privilégié au coeur de l'Entre-deux MersDécouvrez nos 3 maisons neuves idéalement situées dans un quartier résidentiel calme de Targon, à seulement quelques pas du centre-ville. Profitez d'un cadre de vie pratique et agréable, avec toutes les commodités accessibles à pied dont une maison de santé regroupant 18 professionnels de santé ainsi qu'une pharmacie à proximité immédiate. Chaque maison bénéficie des avantages du neuf : frais de notaire réduits, performances énergétiques optimisées et agencement moderne pensé pour le confort quotidien. Une opportunité rare à Targon d'habiter ou investir dans un environnement serein.
Targon
En travaux

Accédez à notre page dédiée au programme "Domaine De L'entre-deux-mers" pour tout savoir sur la résidence, ses prestations et son quartier.

