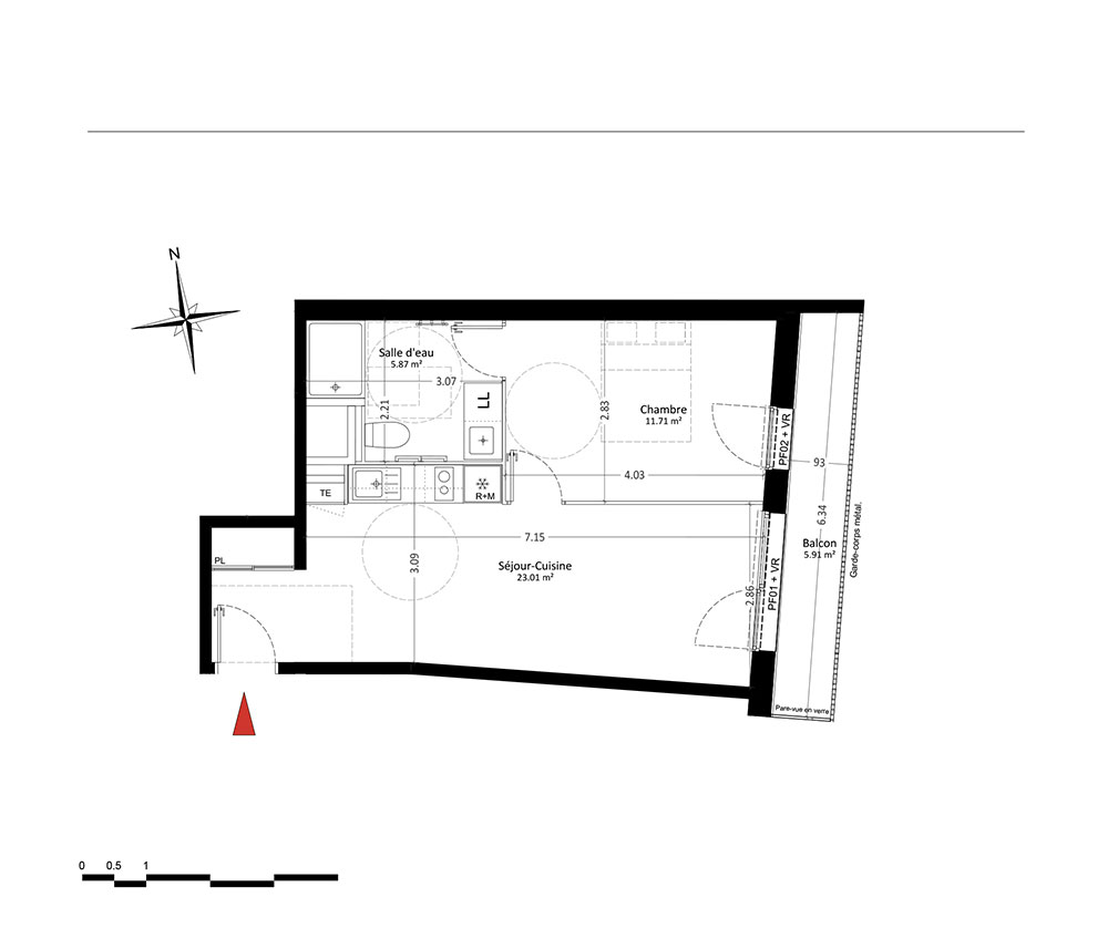
Appartement T2 n°5102 à Clermont-Ferrand (63000)
Prix : nous consulter
Les Senioriales à Clermont-Ferrand
À noter
- Clermont-Ferrand
- 4ème trimestre 2025
- Résidence principale/secondaire
- Investissement locatif
- Votre suivi personnalisé Peterson.fr
- Garanti prix direct promoteur
Prestations et équipements
À propos du programme
Vous souhaitez investir et bénéficiez d'une fiscalité avantageuse? Vous souhaitez habiter au sein d'une résidence avec services? Découvrez notre nouvelle résidence services séniors en co pormotion avec les Sénioriales. Située à Clermont-Ferrand, à deux pas du centre-ville et de ses commodités, votre nouvelle résidence propose de jolis appartements bien agencés du 1 au 3 pièces avec terrasse. Vous pourrez bénéficiez de services inclus et à la carte ainsi que d'un salon-club, d'un jardin et d'une terrasse. Contactez-nous dès maintenant pour obtenir de plus amples informations.
Clermont-Ferrand
Livré

Accédez à notre page dédiée au programme "Les Senioriales" pour tout savoir sur la résidence, ses prestations et son quartier.
Autres biens disponibles
Description du programme neuf « Les Senioriales »
Clermont-Ferrand est le berceau du projet immobilier neuf « Les Senioriales ». Ce programme immobilier propose 69 appartements, tous neufs. De type T1 et T2, si vous cherchez une résidence principale ou secondaire ou encore un investissement locatif, ils se révéleront appropriés à votre projet. Ils pourront être habités fin décembre 2023 et s'avèrent être, en complément, éligibles au dispositif Pinel.
