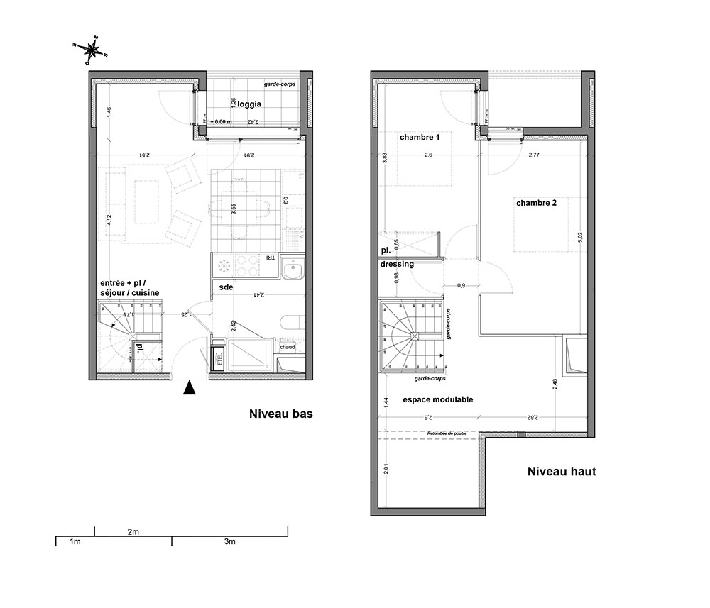
Appartement T3 n°A108 à Mérignac (33700)
Prix : nous consulter
Euphorbia à Mérignac
À noter
- Mérignac
- 4ème trimestre 2024
- Résidence principale/secondaire
- Investissement locatif
- Votre suivi personnalisé Peterson.fr
- Garanti prix direct promoteur
Prestations et équipements
À propos du programme
L'ilot Euphorbia marque symboliquement le renouveau du quartier de Mérignac Soleil. C'est un ilot à l'architecture ambitieuse, une pièce urbaine complexe qui affirme sa dimension pionnière.
L'ensemble a été pensé comme une superposition de strates en double niveaux, combinant commerces et logements, duplex et simplex, T1 et T5.
Mérignac
Livré

Accédez à notre page dédiée au programme "Euphorbia" pour tout savoir sur la résidence, ses prestations et son quartier.
Autres biens disponibles
Profitez du nouveau projet immobilier « Euphorbia »
« Euphorbia » est un programme immobilier neuf qui est installé à Mérignac. Ce nouveau programme compte 40 duplex et appartements neufs. Allant du T1 au T4, ils correspondront autant à un investissement locatif qu'à une résidence principale ou secondaire. Ils sont éligibles au dispositif Pinel et seront livrés fin décembre 2024.
Investissez malin !
Ce programme peut bénéficier de nombreux avantages financiers adaptés à votre projet immobilier neuf :
Je recherche un bien pour...




