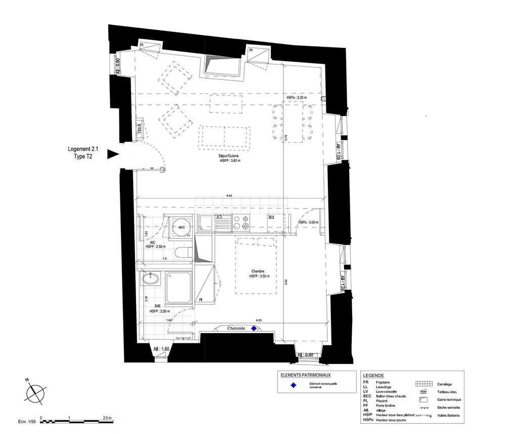
Appartement T2 n°21 à Le Mans (72100)
Prix : nous consulter
Le 70 à Le Mans
Malraux
Appartement
T2 / F2 / 2 pièces
58,5 m² habitables
2ème étage
Sud-est
1 chambre
Cave
À noter
- Le Mans
- 3ème trimestre 2025
- Investissement locatif
- Votre suivi personnalisé Peterson.fr
- Garanti prix direct promoteur
Dispositifs d'investissement
Bon plan pour acheter malin !
Ce programme propose des biens éligibles aux dispositifs de défiscalisation suivant :
Ce programme propose des biens éligibles aux dispositifs de défiscalisation suivant :
Malraux
Prestations et équipements
À propos du programme
Idéalement située entre Paris, Nantes et Rennes, Le Mans est devenue une destination de prédilection pour de grandes entreprises internationales créatrices d’emplois.
C’est une ville de choix pour les jeunes actifs et les étudiants.
Au cœur du Vieux Mans, Le 70 est une demeure du XVIe siècle qui sera réhabilitée en 8 appartements d’exception. Les cheminées, boiseries, tomettes, moulures et escalier en colimaçon seront conservés afin d’apporter du cachet.

Accédez à notre page dédiée au programme "Le 70" pour tout savoir sur la résidence, ses prestations et son quartier.

