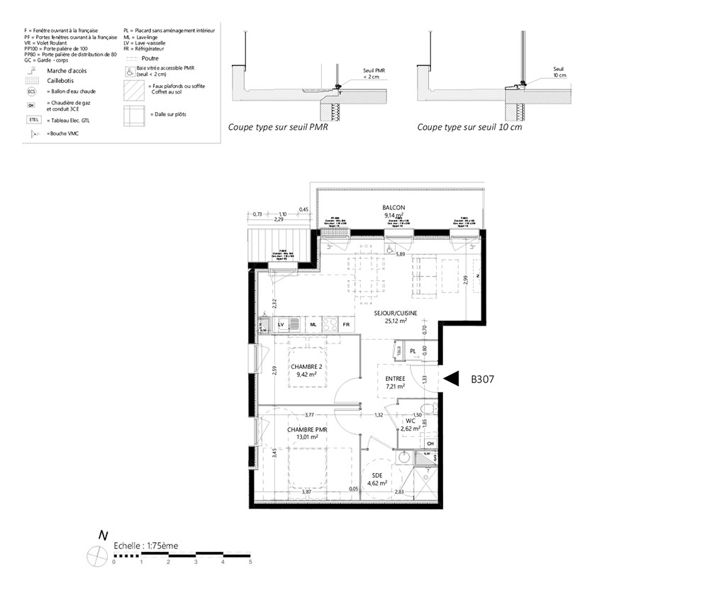
Appartement T3 n°B307 à Le Havre (76620)
Prix : nous consulter
Havre En Scene à Le Havre
À noter
- Le Havre
- Livraison 1er trimestre 2026
- Résidence principale/secondaire
- Investissement locatif
- Votre suivi personnalisé Peterson.fr
- Garanti prix direct promoteur
Prestations et équipements
À propos du programme
La résidence Havre en Scène est composée de 48 logements lumineux et confortables, du 1 au 4 pièces, répartis sur 2 bâtiments. Chaque logement dispose de sa terrasse ou balcon et d’un stationnement privatif sécurisé. La résidence moderne revisite les marqueurs de l’architecture havraise : brique, enduit clair, balcon filant. En rez-de-chaussée de ses bâtiments, de nouveaux commerces et des espaces de bureaux. Une adresse privilégiée, dans un quartier en plein essor, à proximité des commerces, services, loisirs, transports (nouvelle ligne de tramway au pied de la résidence) et écoles.
Le Havre
En travaux

Accédez à notre page dédiée au programme "Havre En Scene" pour tout savoir sur la résidence, ses prestations et son quartier.
Autres biens disponibles
Du nouveau au niveau de l'immobilier avec le programme « Havre En Scene »
C'est le paysage du Havre qui abrite le programme immobilier « Havre En Scene ». Ce dernier offre des biens neufs. 94 appartements neufs sont inclus dans ce projet. Ils sont de type T1, T2, T3 et T4 et adaptés aussi bien à une résidence principale ou secondaire et à un investissement locatif. Ils sont éligibles au dispositif Pinel et seront livrés fin décembre 2025.