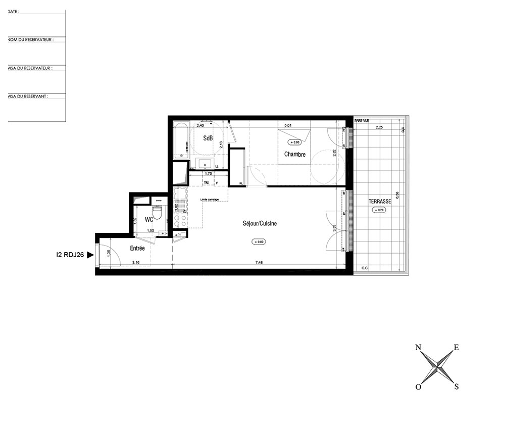
Appartement T2 n°I2R26 à Meudon (92190)
Prix : nous consulter
Vue en Scène à Meudon
À noter
- Meudon
- Livraison 3ème trimestre 2027
- Résidence principale/secondaire
- Investissement locatif
- Votre suivi personnalisé Peterson.fr
- Garanti prix direct promoteur
Ce programme propose des biens éligibles aux dispositifs de défiscalisation suivant :
Prestations et équipements
À propos du programme
Un placement patrimonial d’excellence. Stratégique, il conjugue la notoriété des Hauts-de-Seine, la proximité de Paris, la qualité de vie de Meudon et l’agrément d’une adresse citadine, proche de tout. Il s’inscrit dans l’un des plus beaux cadres d’Île-de-France, offrant des vues exceptionnelles, la douceur d’une ambiance naturelle, et la proximité des commerces et des transports. Programme phare de la ville, sur un site emblématique par son passé et ses atouts, il constitue sans conteste une valeur sûre, solide et pérenne, pour enrichir votre portefeuille immobilier.

Accédez à notre page dédiée au programme "Vue en Scène" pour tout savoir sur la résidence, ses prestations et son quartier.
Autres biens disponibles
Le programme « Vue en Scène » s'installe dans le marché immobilier local
« Vue en Scène » est un projet immobilier neuf qui est installé à Meudon. 30 appartements neufs sont inclus dans ce projet. Ils sont de type Studio, T2, T3 et T4 et se prêtent aussi bien à une résidence principale ou secondaire qu'à un investissement locatif. Au troisième trimestre 2026, ils seront terminés et sachez qu'ils sont éligibles au dispositif Pinel.








