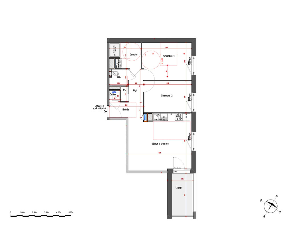
Appartement T3 n°A102 à Belle-Beille Angers (49100)
Prix : nous consulter
Domaine à Belle-Beille - Angers
À noter
- Angers
- Livraison 4ème trimestre 2027
- Résidence principale/secondaire
- Investissement locatif
- Votre suivi personnalisé Peterson.fr
- Garanti prix direct promoteur
Prestations et équipements
À propos du programme
DOMAINE comprend 2 immeubles collectifs et 4 maisons de ville soit 41 logements du T1 au T5 répartis sur 2 ou 4 niveaux dont un attique avec places de stationnement privatives en parking souterrain et une place équipée d'une borne de recharge à l'entrée de la résidence.
Les espaces communs sont sécurisés et conçus pour le confort des résidents, y compris un espace de conciergerie.
Chaque logement a été conçu pour offrir un espace de vie régénérant et pratique avec des pièces lumineuses s'ouvrant sur des terrasses spacieuses ou balcons privés.
Quartier étudiants, Zone urbaine
Belle-Beille
En travaux

Accédez à notre page dédiée au programme "Domaine" pour tout savoir sur la résidence, ses prestations et son quartier.
Autres biens disponibles
Investissez malin !
Ce programme peut bénéficier de nombreux avantages financiers adaptés à votre projet immobilier neuf :
Je recherche un bien pour...

