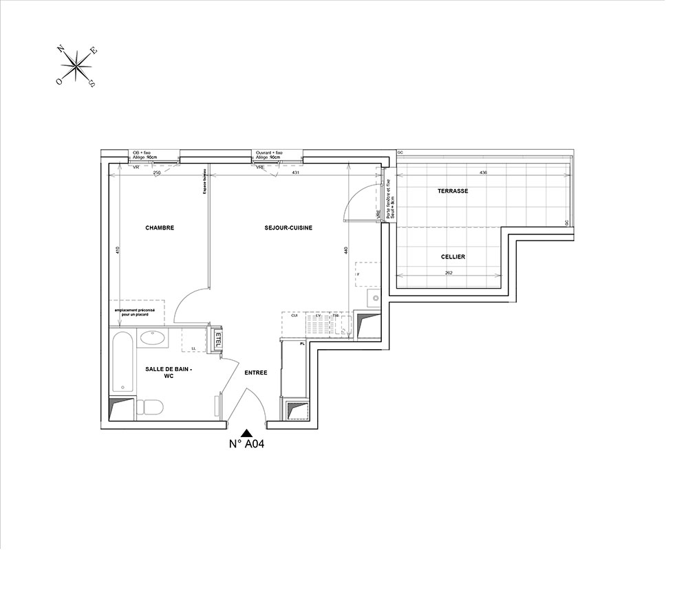
Appartement T2 n°A04 à La Roche-sur-Foron (74800)
Prix : nous consulter
Oreade à La Roche-sur-Foron
À noter
- La Roche-sur-Foron
- Livraison 4ème trimestre 2027
- Résidence principale/secondaire
- Investissement locatif
- Votre suivi personnalisé Peterson.fr
- Garanti prix direct promoteur
Prestations et équipements
À propos du programme
Au cœur de la Haute-Savoie, entre les sommets alpins et le lac Léman, devenez propriétaire d’un bel appartement neuf du studio au 4 pièces. Au cœur de La Roche-sur-Foron, cette résidence contemporaine allie élégance architecturale et respect de l'environnement, à deux pas du centre historique médiéval. Avec ses espaces extérieurs généreux jusqu'à 98 m², son beau jardin en cœur d’îlot de 800 m² et sa certification RE 2020, elle répond aux exigences des investisseurs comme des résidants cherchant qualité de vie et placement pérenne.
La Roche-sur-Foron
En travaux

Accédez à notre page dédiée au programme "Oreade" pour tout savoir sur la résidence, ses prestations et son quartier.
Autres biens disponibles
Découvrez le projet neuf « Oreade »
Le programme immobilier « Oreade », qui propose des biens neufs, est implanté à La Roche-sur-Foron. Ce programme comprend 30 appartements neufs, dont 15 sont encore disponibles à ce jour. De type T1, T2, T3 et T4, ils s'adressent autant aux intéressés par l'investissement locatif qu'aux personnes à la recherche d'une résidence principale ou secondaire. Sachez que les biens sont éligibles aux dispositifs LMNP (loueur en meublé non professionnel) hors bail commercial et de droit commun et seront terminés au troisième trimestre 2027.



