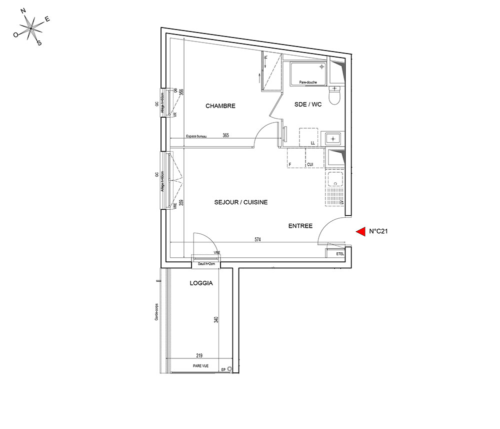
Appartement T2 n°C21 à Cognin (73160)
Prix : nous consulter
Scala à Cognin
À noter
- Cognin
- Livraison 2ème trimestre 2028
- Résidence principale/secondaire
- Investissement locatif
- Votre suivi personnalisé Peterson.fr
- Garanti prix direct promoteur
Prestations et équipements
À propos du programme
La proximité du centre-ville de Chambéry, un quartier résidentiel aux vues dégagées sur les reliefs, une offre complète d’équipements scolaires et sportifs, une excellente accessibilité… cette nouvelle résidence à Cognin profite d’un environnement attrayant qu’elle magnifie par son architecture intemporelle. Du studio au 4 pièces, découvrez un large éventail d’appartements avec jardins privatifs, terrasses de plain-pied, balcons, loggias ou terrasses plein ciel jusqu’à 100 m².
Cognin
En travaux

Accédez à notre page dédiée au programme "Scala" pour tout savoir sur la résidence, ses prestations et son quartier.
Autres biens disponibles
Une idée du nouveau programme immobilier « Scala »
Cognin est le berceau du projet immobilier neuf « Scala ». On peut trouver dans ce projet 46 appartements neufs. 30 de ces derniers sont, quant à eux, encore disponibles. De type T1, T2, T3 et T4, ils se destinent plutôt aux personnes intéressées par l'investissement locatif mais conviennent également pour investir dans une résidence principale ou secondaire. Les logements seront livrés à la fin de l'année 2027, à la fin des travaux, et sont éligibles aux dispositifs LMNP (loueur en meublé non professionnel) hors bail commercial et de droit commun.


