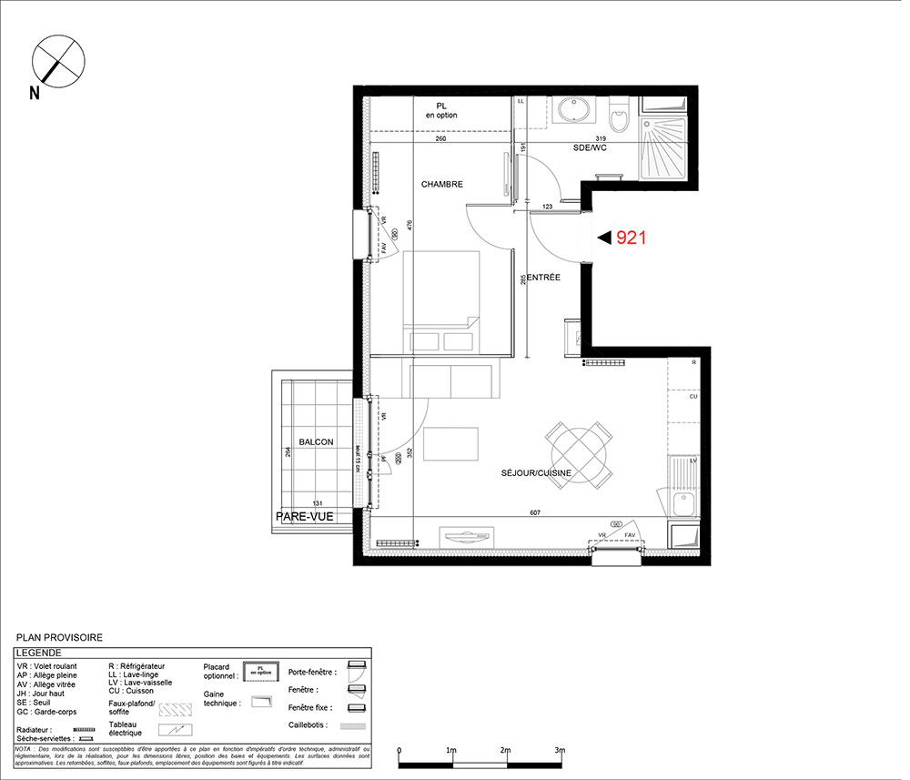
Appartement T2 n°921 à Argenteuil (95100)
Prix : nous consulter
Le 5 à Argenteuil
Appartement
T2 / F2 / 2 pièces
41,8 m² habitables
2ème étage
Nord-est
1 chambre
Station. 1
Balcon 3 m²
À noter
- Argenteuil
- Livraison 1er trimestre 2028
- Résidence principale/secondaire
- Investissement locatif
- Votre suivi personnalisé Peterson.fr
- Garanti prix direct promoteur
Prestations et équipements
À propos du programme
Soyez les premiers d'un appartement neuf d'exception à vivre comme une maison! Découvrez en avant-première notre nouveau projet à Argenteuil, dans le quartier paisible du Val Notre-Dame, éligible à la TVA réduite.
Argenteuil
En travaux
Livraison 1er trimestre 2028

Accédez à notre page dédiée au programme "Le 5" pour tout savoir sur la résidence, ses prestations et son quartier.
Autres biens disponibles
Le programme neuf Le 5, situé dans la ville de Argenteuil, est composé de 59 logements neufs de type appartement répartis en T2, T3, T4, livrés du 1er trimestre 2028 au 1er trimestre 2028 et destinés aux différents projets : résidence principale, résidence secondaire et investissement locatif. Ce programme neuf est éligible aux dispositifs Droit Commun, LMNP Hors Bail commercial et Jeanbrun pour habiter ou investir à Argenteuil.
N° de lot
Surface
Commodités
Étage
Exposition
N° de lot
Surface
Commodités
Étage
Exposition
N° de lot
Surface
Commodités
Étage
Exposition



