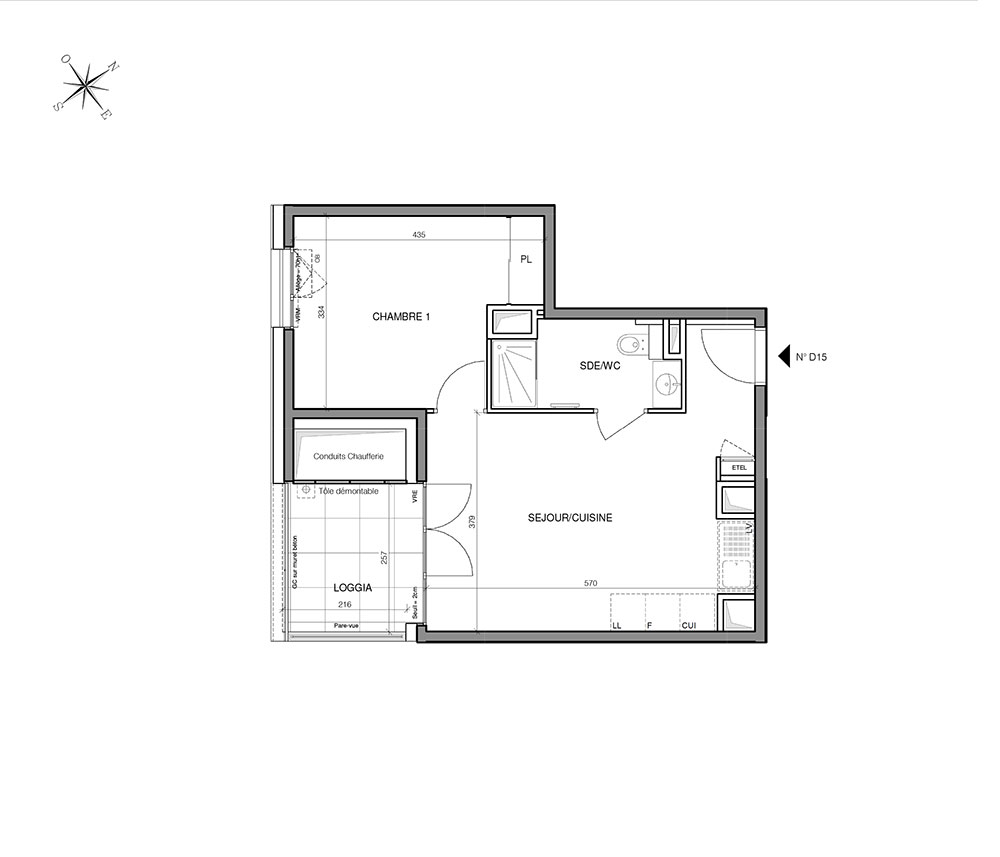
Appartement T2 n°D15 à Annecy (74000)
Prix : nous consulter
Hypnose à Annecy
À noter
- Annecy
- Livraison 4ème trimestre 2028
- Résidence principale/secondaire
- Investissement locatif
- Votre suivi personnalisé Peterson.fr
- Garanti prix direct promoteur
Prestations et équipements
À propos du programme
Au cœur de la Perle des Alpes, Cogedim dévoile le troisième volet du quartier des hirondelles après le succès commercial de Vertuose et Osmose. Découvrez une nouvelle adresse d’exception, où centralité urbaine rime avec sérénité naturelle. Cette réalisation séduit par son architecture contemporaine et sculpturale, ainsi que par ses appartements neufs inondés de lumière, tous mis en valeur par de vastes espaces extérieurs privatifs : balcons panoramiques et, pour certains privilégiés, terrasses d’exception pouvant accueillir un jacuzzi, offrant une vue à couper le souffle aux amateurs d’horizons XXL. Située à quinze minutes* à pied du lac et à seulement trois minutes de la gare, cette adresse privilégiée offre un accès direct à l’art de vivre annécien.
Annecy
En travaux

Accédez à notre page dédiée au programme "Hypnose" pour tout savoir sur la résidence, ses prestations et son quartier.
Autres biens disponibles
Tout savoir pour profiter du nouveau projet immobilier « Hypnose »
Annecy inclut le programme « Hypnose » à son parc immobilier. Ce projet propose 52 appartements et duplex neufs dont 43 sont encore disponibles. Allant du T2 au T4, ils correspondront tant à un investissement locatif qu'à une résidence principale ou secondaire. Éligibles aux dispositifs LMNP (loueur en meublé non professionnel) hors bail commercial et de droit commun, les biens seront terminés fin décembre 2028.






