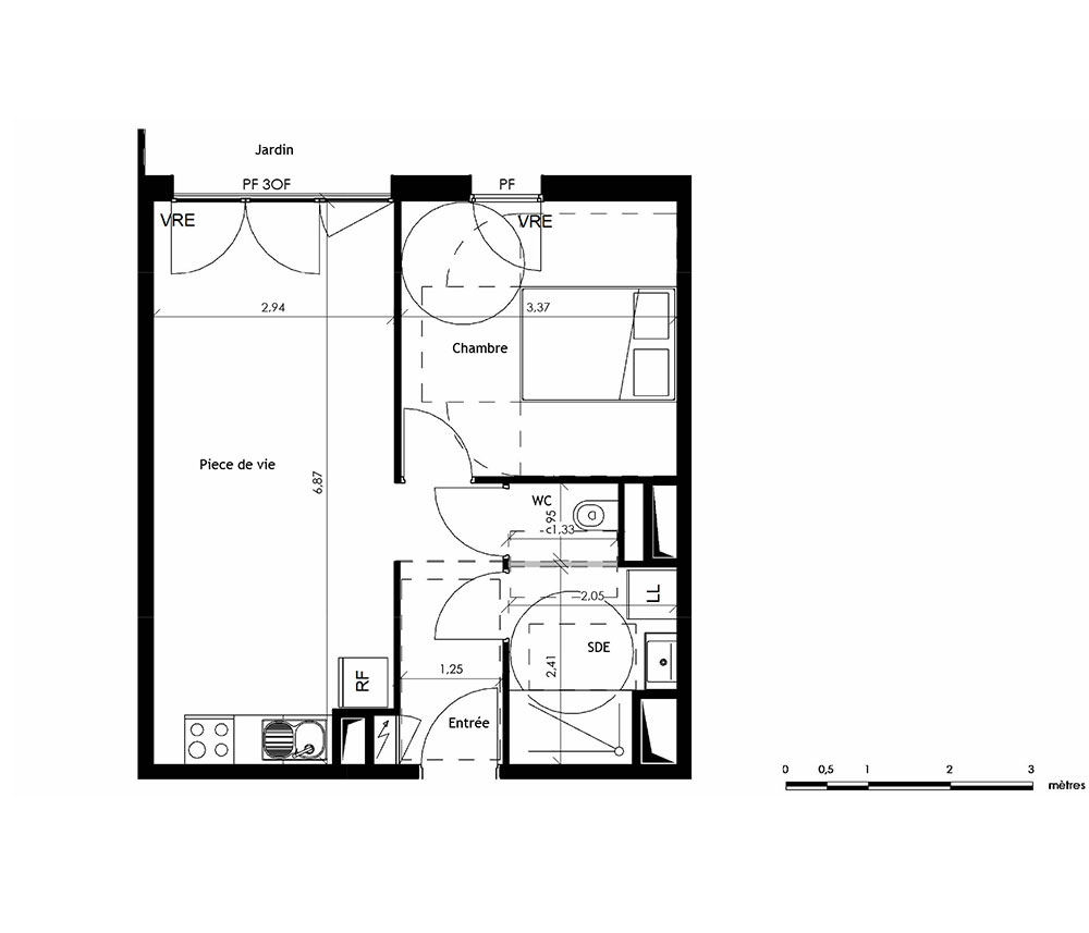
Appartement T2 n°A001 à Angers (49100)
Prix : nous consulter
Blum à Angers
À noter
- Angers
- Livraison 4ème trimestre 2027
- Résidence principale/secondaire
- Investissement locatif
- Votre suivi personnalisé Peterson.fr
- Garanti prix direct promoteur
Prestations et équipements
À propos du programme
Blüm, située au coeur de la ZAC du Plateau de la Mayenne à la lisière d'Avrillé, dans un quartier en plein essor, se compose de 2 bâtiments en R 2 avec attique, accueillant 54 logements du T1 bis au T4. Chaque appartement profite d’un espace extérieur privatif : balcon, terrasse ou jardin. Architecture biophilique mêlant bois, métal et pierre naturelle, jardin paysager central, salle commune ouverte sur l’extérieur, pour encourager le vivre ensemble.
La résidence offre un confort thermique optimal toute l’année, grâce à une conception bioclimatique, une isolation renforcée, des matériaux biosourcés et le chauffage via le réseau de chaleur urbain.
Quartier étudiants, Zone urbaine
Angers
En travaux

Accédez à notre page dédiée au programme "Blum" pour tout savoir sur la résidence, ses prestations et son quartier.
Autres biens disponibles
Investissez malin !
Ce programme peut bénéficier de nombreux avantages financiers adaptés à votre projet immobilier neuf :
Je recherche un bien pour...


