Le Clos d'AuronLe Clos d'AuronLe Clos d'AuronLe Clos d'AuronLe Clos d'Auron
Le Clos d'Auron
Le Clos d'Auron
Le Clos d'Auron
Le Clos d'Auron
Le Clos d'Auron

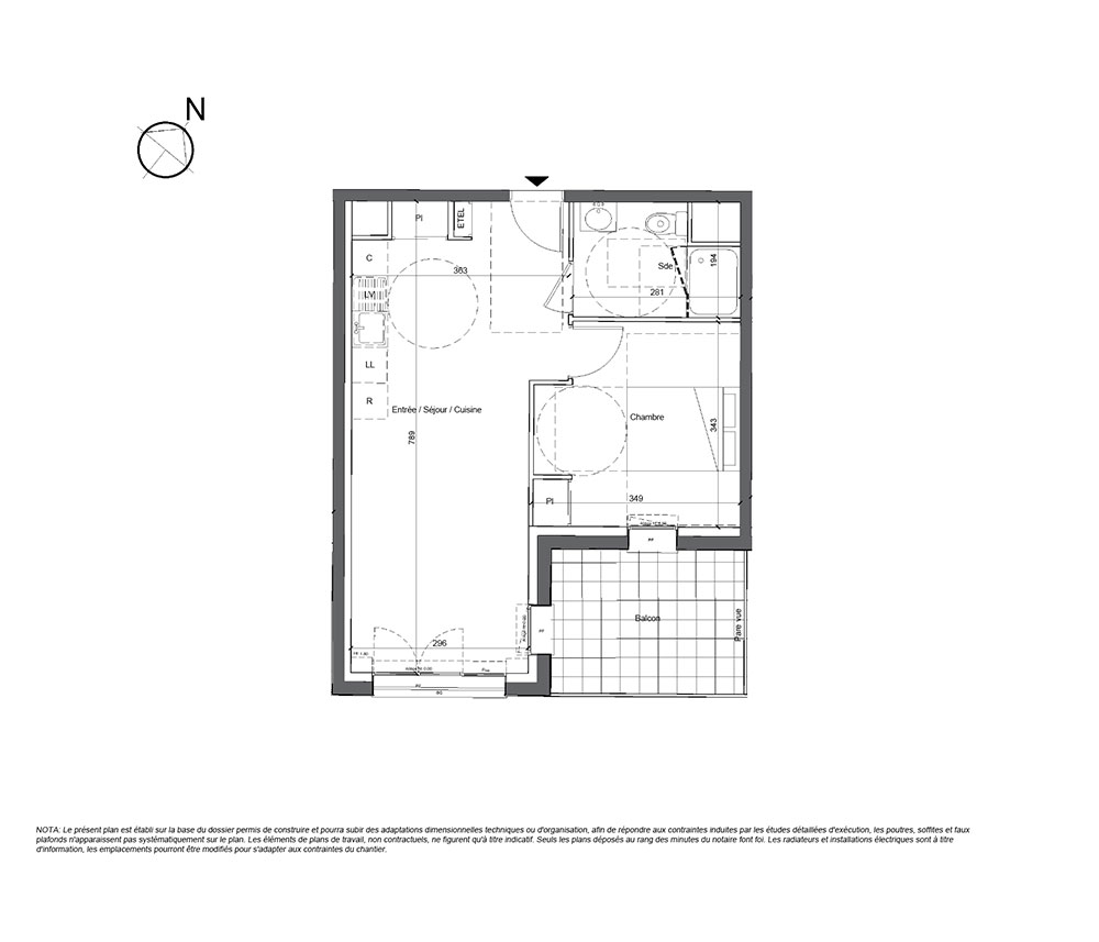
Appartement T2 n°1405 à Bourges (18000)

Prix : nous consulter

Bourges (18000)

Le Clos d'Auron à Bourges

Appartement
T2 / F2 / 2 pièces
39,8 m² habitables
4ème étage
Sud-est
1 chambre
Station. 1
Balcon 8 m²

À noter

  • Bourges
  • Livraison 1er trimestre 2028
  • Résidence principale/secondaire
  • Investissement locatif
  • Votre suivi personnalisé Peterson.fr
  • Garanti prix direct promoteur

Prestations et équipements

Parking
Terrasse / Balcon

À propos du programme

Découvrez une nouvelle résidence Le Clos d'Auron à Bourges pensée pour vous offrir bien plus qu'un logement : un véritable cadre de vie. Du studio cosy au confortable 3 pièces, chaque appartement a été conçu pour allier confort, économies d'énergie et qualité de vie. Ascenseur, local vélos, parkings privatifs Tout est là pour simplifier votre quotidien.

Étudiants, jeunes actifs, seniors : chacun y trouve sa place. Et pour les plus âgés, un pack 'confort' en option permet d'adapter le logement pour un maintien à domicile en toute sérénité.

Vivre ici, c'est choisir la tranquillité d'un quartier agréable, tout en restant proche des commodités et du coeur de Bourges. C'est aussi faire le choix d'un habitat durable, conforme aux dernières normes de construction.

Acheter du neuf, c'est bénéficier de nombreux avantages : un logement personnalisable, des garanties constructeur qui vous protègent pendant plusieurs années, des frais de notaire réduits, et pour votre 1er achat, la possibilité de financer une partie de votre bien grâce au prêt à taux zéro !

En travaux

Livraison 1er trimestre 2028

Accédez à notre page dédiée au programme "Le Clos d'Auron" pour tout savoir sur la résidence, ses prestations et son quartier.

Autres biens disponibles

Le programme neuf Le Clos d'Auron, situé dans la ville de Bourges, est composé de 67 logements neufs de type appartement répartis en T1, T2, T3, livrés au 1er trimestre 2028 et destinés aux différents projets : résidence principale, résidence secondaire et investissement locatif. Ce programme neuf est éligible aux dispositifs LMNP Hors Bail commercial et Droit Commun pour habiter ou investir à Bourges.
Appartement 1 pièce
3 biens disponibles
N° de lot
Surface
Commodités
Étage
Exposition
Lot n°11061106
29 m²
Parking, Terrasse / Balcon
Étage 1
Exposition : Sud-estSud-est
Lot n°11091109
31 m²
Parking, Terrasse / Balcon
Étage 1
Exposition : Sud-ouestSud-ouest
Lot n°12101210
31 m²
Parking, Terrasse / Balcon
Étage 2
Exposition : Sud-ouestSud-ouest
N° de lot
Surface
Commodités
Étage
Exposition
Lot n°10021002
41 m²
Parking, Jardin, Terrasse / Balcon
RDC
Exposition : Nord-estNord-est
Lot n°10031003
50 m²
Parking, Jardin, Terrasse / Balcon
RDC
Exposition : Nord-ouestNord-ouest
Lot n°11051105
41 m²
Parking, Terrasse / Balcon
Étage 1
Exposition : Sud-estSud-est
Lot n°11071107
42 m²
Parking, Terrasse / Balcon
Étage 1
Exposition : Nord-ouestNord-ouest
Lot n°11081108
42 m²
Parking, Terrasse / Balcon
Étage 1
Exposition : Sud-ouestSud-ouest
Lot n°11101110
41 m²
Parking, Terrasse / Balcon
Étage 1
Exposition : Sud-ouestSud-ouest
Lot n°11021102
43 m²
Parking, Terrasse / Balcon
Étage 1
Exposition : Sud-estSud-est
Lot n°11031103
41 m²
Parking, Terrasse / Balcon
Étage 1
Exposition : Sud-estSud-est
Lot n°11041104
41 m²
Parking, Terrasse / Balcon
Étage 1
Exposition : Sud-estSud-est
Lot n°11111111
45 m²
Parking, Terrasse / Balcon
Étage 1
Exposition : Nord-estNord-est
Lot n°11121112
42 m²
Parking, Terrasse / Balcon
Étage 1
Exposition : Nord-estNord-est
Lot n°11131113
39 m²
Parking
Étage 1
Exposition : Nord-estNord-est
Lot n°12011201
41 m²
Parking, Terrasse / Balcon
Étage 2
Exposition : Nord-ouestNord-ouest
Lot n°12021202
43 m²
Parking, Terrasse / Balcon
Étage 2
Exposition : Sud-estSud-est
Lot n°12031203
41 m²
Parking, Terrasse / Balcon
Étage 2
Exposition : Sud-estSud-est
Lot n°12041204
41 m²
Parking, Terrasse / Balcon
Étage 2
Exposition : Sud-estSud-est
Lot n°12051205
41 m²
Parking, Terrasse / Balcon
Étage 2
Exposition : Sud-estSud-est
Lot n°12071207
43 m²
Parking, Terrasse / Balcon
Étage 2
Exposition : Nord-ouestNord-ouest
Lot n°12081208
39 m²
Parking, Terrasse / Balcon
Étage 2
Exposition : Nord-ouestNord-ouest
Lot n°12091209
42 m²
Parking, Terrasse / Balcon
Étage 2
Exposition : Sud-ouestSud-ouest
Lot n°12111211
41 m²
Parking, Terrasse / Balcon
Étage 2
Exposition : Sud-ouestSud-ouest
Lot n°12121212
43 m²
Parking, Terrasse / Balcon
Étage 2
Exposition : Nord-estNord-est
Lot n°12131213
42 m²
Parking, Terrasse / Balcon
Étage 2
Exposition : Nord-estNord-est
Lot n°12141214
39 m²
Parking, Terrasse / Balcon
Étage 2
Exposition : Nord-estNord-est
Lot n°13011301
41 m²
Parking, Terrasse / Balcon
Étage 3
Exposition : Nord-ouestNord-ouest
Lot n°13021302
43 m²
Parking, Terrasse / Balcon
Étage 3
Exposition : Sud-estSud-est
Lot n°13031303
41 m²
Parking, Terrasse / Balcon
Étage 3
Exposition : Sud-estSud-est
Lot n°13041304
41 m²
Parking, Terrasse / Balcon
Étage 3
Exposition : Sud-estSud-est
Lot n°13051305
41 m²
Parking, Terrasse / Balcon
Étage 3
Exposition : Sud-estSud-est
Lot n°13071307
43 m²
Parking, Terrasse / Balcon
Étage 3
Exposition : Nord-ouestNord-ouest
Lot n°13081308
39 m²
Parking, Terrasse / Balcon
Étage 3
Exposition : EstEst
Lot n°13091309
42 m²
Parking, Terrasse / Balcon
Étage 3
Exposition : Sud-ouestSud-ouest
Lot n°13111311
43 m²
Parking, Terrasse / Balcon
Étage 3
Exposition : Nord-estNord-est
Lot n°13121312
42 m²
Parking, Terrasse / Balcon
Étage 3
Exposition : Nord-estNord-est
Lot n°13131313
39 m²
Parking, Terrasse / Balcon
Étage 3
Exposition : Nord-estNord-est
Lot n°14011401
41 m²
Parking, Terrasse / Balcon
Étage 4
Exposition : Nord-ouestNord-ouest
Lot n°14021402
42 m²
Parking, Terrasse / Balcon
Étage 4
Exposition : Sud-estSud-est
Lot n°14031403
40 m²
Parking, Terrasse / Balcon
Étage 4
Exposition : Sud-estSud-est
Lot n°14041404
40 m²
Parking, Terrasse / Balcon
Étage 4
Exposition : Sud-estSud-est
Lot n°14071407
43 m²
Parking, Terrasse / Balcon
Étage 4
Exposition : Nord-ouestNord-ouest
Lot n°14081408
39 m²
Parking, Terrasse / Balcon
Étage 4
Exposition : Nord-ouestNord-ouest
Lot n°14091409
40 m²
Parking, Terrasse / Balcon
Étage 4
Exposition : Sud-ouestSud-ouest
Lot n°14111411
41 m²
Parking, Terrasse / Balcon
Étage 4
Exposition : Nord-estNord-est
Lot n°14121412
38 m²
Parking, Terrasse / Balcon
Étage 4
Exposition : Nord-estNord-est
Lot n°15011501
40 m²
Parking, Terrasse / Balcon
Étage 5
Exposition : Nord-ouestNord-ouest
Lot n°15021502
41 m²
Parking, Terrasse / Balcon
Étage 5
Exposition : Sud-estSud-est
Lot n°15031503
38 m²
Parking, Terrasse / Balcon
Étage 5
Exposition : Sud-estSud-est
Lot n°15041504
39 m²
Parking, Terrasse / Balcon
Étage 5
Exposition : Sud-estSud-est
Lot n°15071507
42 m²
Parking, Terrasse / Balcon
Étage 5
Exposition : Nord-ouestNord-ouest
Lot n°15081508
37 m²
Parking, Terrasse / Balcon
Étage 5
Exposition : Nord-ouestNord-ouest
Lot n°11011101
41 m²
Parking, Terrasse / Balcon
Étage 1
Exposition : Nord-ouestNord-ouest
Lot n°15051505
38 m²
Parking, Terrasse / Balcon
Étage 5
Exposition : Sud-estSud-est
Lot n°15091509
37 m²
Parking, Terrasse / Balcon
Étage 5
Exposition : Sud-ouestSud-ouest
Lot n°15121512
36 m²
Parking, Terrasse / Balcon
Étage 5
Exposition : Nord-estNord-est
Lot n°15111511
39 m²
Parking, Terrasse / Balcon
Étage 5
Exposition : Nord-estNord-est
N° de lot
Surface
Commodités
Étage
Exposition
Lot n°10011001
52 m²
Parking, Jardin, Terrasse / Balcon
RDC
Exposition : Nord-estNord-est
Lot n°12061206
62 m²
Parking, Terrasse / Balcon
Étage 2
Exposition : Sud-estSud-est
Lot n°13061306
62 m²
Parking, Terrasse / Balcon
Étage 3
Exposition : Sud-estSud-est
Lot n°13101310
65 m²
Parking, Terrasse / Balcon
Étage 3
Exposition : Sud-ouestSud-ouest
Lot n°14061406
61 m²
Parking, Terrasse / Balcon
Étage 4
Exposition : Sud-estSud-est
Lot n°14101410
62 m²
Parking, Terrasse / Balcon
Étage 4
Exposition : Sud-ouestSud-ouest
Lot n°15061506
58 m²
Parking, Terrasse / Balcon
Étage 5
Exposition : Sud-estSud-est
Lot n°15101510
59 m²
Parking, Terrasse / Balcon
Étage 1
Exposition : Sud-ouestSud-ouest