Appartement T2 n°53 à Grenoble (38000)
Prix : nous consulter
Cadence à Grenoble
Appartement
T2 / F2 / 2 pièces
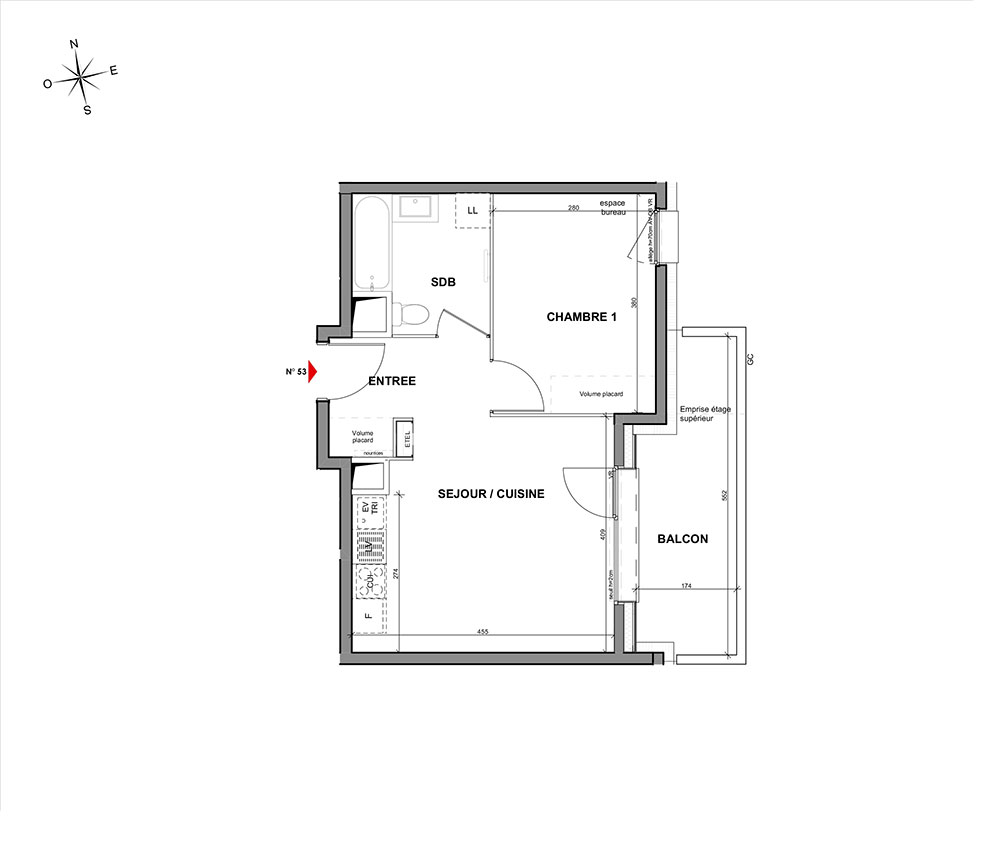
38,08 m² habitables
5ème étage
Est
1 chambre
Balcon 6 m²
À noter
- Grenoble
- Livraison 4ème trimestre 2027
- Résidence principale/secondaire
- Investissement locatif
- Votre suivi personnalisé Peterson.fr
- Garanti prix direct promoteur
Prestations et équipements
À propos du programme
Lumière, nature et culture se rencontrent au sein de cette résidence contemporaine à l’architecture remarquable, nichée dans un quartier d’avenir à quelques minutes du centre historique de Grenoble. Les appartements, du 2 au 4 pièces, bénéficient de balcons ou terrasses généreux, et pour la plupart, d’orientations traversantes ou d’angle. Une grande terrasse partagée sur le toit et des locaux vélos bien aménagés renforcent l’art de vivre quotidien. Un nouveau cadre de vie lumineux, à deux pas du cœur culturel de Grenoble.
Grenoble
En travaux
Livraison 4ème trimestre 2027

Accédez à notre page dédiée au programme "Cadence" pour tout savoir sur la résidence, ses prestations et son quartier.
Autres biens disponibles
Le programme neuf Cadence, situé dans la ville de Grenoble, est composé de 22 logements neufs de type appartement répartis en T2, T3, T4, livrés au 4ème trimestre 2027 et destinés aux différents projets : résidence principale, résidence secondaire et investissement locatif. Ce programme neuf est éligible aux dispositifs LMNP Hors Bail commercial et Droit Commun pour habiter ou investir à Grenoble.
N° de lot
Surface
Commodités
Étage
Exposition
N° de lot
Surface
Commodités
Étage
Exposition
N° de lot
Surface
Commodités
Étage
Exposition



