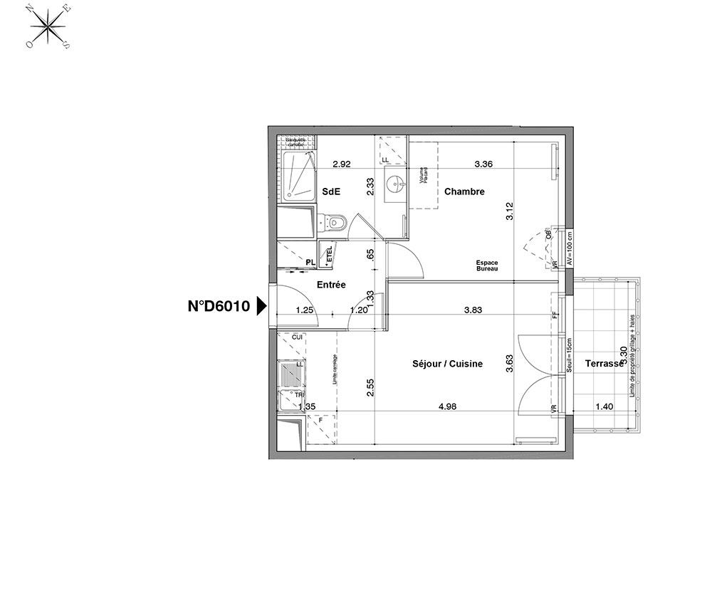
Appartement T2 n°D6010 à Sartrouville (78500)
Prix : nous consulter
Carre Pasteur à Sartrouville
À noter
- Sartrouville
- Livraison 2ème trimestre 2028
- Résidence principale/secondaire
- Investissement locatif
- Votre suivi personnalisé Peterson.fr
- Garanti prix direct promoteur
Prestations et équipements
À propos du programme
À 10 min de La Défense, au cœur de Sartrouville, cette nouvelle résidence Cogedim vous invite à vivre l'équilibre parfait entre raffinement architectural et art de vivre. Implantée dans un quartier pavillonnaire proche des commerces, elle séduit par son style inspiré du patrimoine francilien, ses matériaux nobles et ses lignes harmonieuses. Du studio au 5 pièces, les appartements offrent de généreux volumes baignés de lumière, prolongés de balcons ou de terrasses. Un cadre recherché, à proximité des écoles, des berges de Seine et de tous les transports.
Sartrouville
En travaux

Accédez à notre page dédiée au programme "Carre Pasteur" pour tout savoir sur la résidence, ses prestations et son quartier.