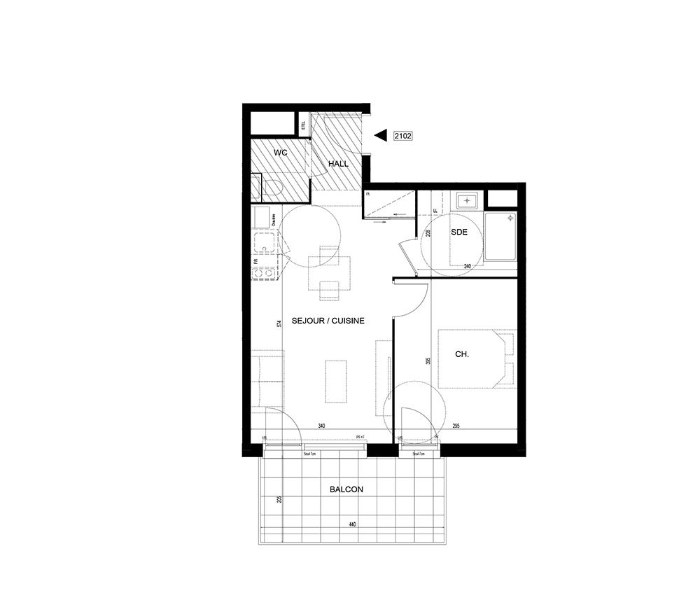
Appartement T2 n°2102 à Maxilly-sur-Léman (74500)
Prix : nous consulter
Au Fil De L'eau à Maxilly-sur-Léman
À noter
- Maxilly-sur-Léman
- Livraison 2ème trimestre 2028
- Résidence principale/secondaire
- Investissement locatif
- Votre suivi personnalisé Peterson.fr
- Garanti prix direct promoteur
Prestations et équipements
À propos du programme
Avec ses 2 kilomètres de littoral sur les rives du lac, Maxilly-sur-Léman, voisine de la très réputée ville d'Évian-les-Bains, est plébiscitée pour son offre infinie de loisirs en plein air, été comme hiver. Vivre à Maxilly c'est vivre au pied des commerces de bouche et de l'école communale et c'est aussi avoir un accès direct et rapide à la ligne de bus n°3 qui permet de rejoindre sans correspondance le centre-ville et la gare d'Évian-les-Bains. Située rue du Miroir, à côté de l'église, la résidence "Au fil de l'eau" est une résidence composée de 18 logements seulement, du 2 au 4 pièces, tous prolongés d'un espace extérieur et bénéficiant de belles vues lac. Les intérieurs offrent des surfaces généreuses que vous pourrez aménager à votre guise . Vous avez un projet d'achat ? Découvrez notre nouveau programme immobilier en avant-première et soyez le premier à choisir votre futur chez vous !
Maxilly-sur-Léman
En travaux

Accédez à notre page dédiée au programme "Au Fil De L'eau" pour tout savoir sur la résidence, ses prestations et son quartier.