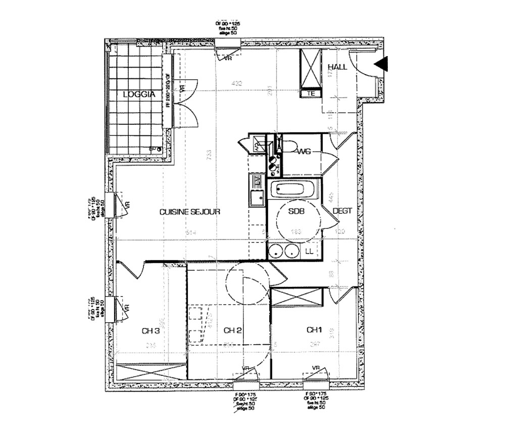
Appartement T4 n°202 à Caluire-et-Cuire (69300)
Prix : nous consulter
Greenway - Caluire-et-Cuire à Caluire-et-Cuire
À noter
- Caluire-et-Cuire
- 3ème trimestre 2015
- Investissement locatif
- Votre suivi personnalisé Peterson.fr
- Garanti prix direct promoteur
Ce programme propose des biens éligibles aux dispositifs de défiscalisation suivant :
À propos du programme
Située au cœur du quartier résidentiel de Montessuy, à Caluire-et-Cuire, la résidence Greenway profite d’un environnement privilégié aux portes de Lyon. Bordée par la Saône et le Rhône, elle allie cadre verdoyant et vie citadine, à proximité immédiate des commerces, des transports et des équipements sportifs.
Adossée à la voie verte des Dombes, la résidence séduit par son architecture contemporaine et lumineuse, harmonieusement intégrée dans un îlot paysager. Les 29 appartements, du T2 au T4, offrent de beaux volumes prolongés par des terrasses, loggias ou jardins privatifs.
Labellisée BBC Effinergie et Qualitel, Greenway propose des prestations de qualité : parquet dans les chambres, carrelage grand format, double vitrage, chaudière gaz à condensation, et sécurité renforcée par digicode, Vigik et vidéophone.
Un investissement durable dans une adresse prisée, au sein d’un territoire dynamique à seulement 4 km du centre de Lyon.

Accédez à notre page dédiée au programme "Greenway - Caluire-et-Cuire" pour tout savoir sur la résidence, ses prestations et son quartier.