Les Hauts de FontenayLes Hauts de FontenayLes Hauts de FontenayLes Hauts de Fontenay
Les Hauts de Fontenay
Les Hauts de Fontenay
Les Hauts de Fontenay
Les Hauts de Fontenay

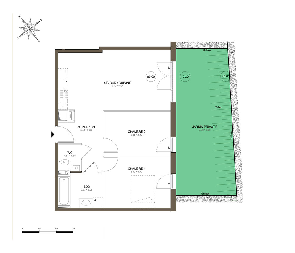
Appartement T3 n°A008 à Fontenay-le-Comte (85200)

Prix : nous consulter

Fontenay-le-Comte (85200)

Les Hauts de Fontenay à Fontenay-le-Comte

Appartement
T3 / F3 / 3 pièces
59,01 m² habitables
RDC
Est
2 chambres
Station. 1
Jardin 26 m²

À noter

  • Fontenay-le-Comte
  • Livraison 4ème trimestre 2027
  • Résidence principale/secondaire
  • Investissement locatif
  • Votre suivi personnalisé Peterson.fr
  • Garanti prix direct promoteur

Prestations et équipements

Parking
Jardin

À propos du programme

Une architecture contemporaine et soignée s'intégrant harmonieusement dans son environnement. La résidence Les Hauts de Fontenay dévoile une architecture discrète et élégante, inspirée des constructions locales et signée par l'agence Archi & Partners International. Habillés d'enduits aux teintes douces et coiffés de toitures en tuiles traditionnelles, ses deux bâtiments de trois étages s'implantent en parfaite harmonie avec le relief naturel et le paysage environnant. Le soin apporté aux espaces extérieurs et à la végétalisation confère au lieu une atmosphère sereine et agréable à vivre. Un cadre de vie conçu pour votre bien-être. Les appartements, du 2 au 3 pièces, se distinguent par des volumes optimisés et lumineux. Confortables et fonctionnels, ils s'ouvrent majoritairement sur un extérieur privatif sous forme de jardin individuel ou de balcon, parfait prolongement de l'espace intérieur. Certains grands logements bénéficient d'une double orientation, assurant une belle luminosité naturelle et des vues dégagées sur l'environnement alentour.

Fontenay-le-Comte

En travaux

Livraison 4ème trimestre 2027

Accédez à notre page dédiée au programme "Les Hauts de Fontenay" pour tout savoir sur la résidence, ses prestations et son quartier.

Autres biens disponibles

Le programme neuf Les Hauts de Fontenay, situé dans la ville de Fontenay-le-Comte, est composé de 74 logements neufs de type appartement répartis en T2, T3, livrés au 4ème trimestre 2027 et destinés aux différents projets : résidence principale, résidence secondaire et investissement locatif. Certains logements du programme bénéficient du dispositif d'aide : zone anru. Ce programme neuf est éligible au dispositif Droit Commun pour habiter ou investir à Fontenay-le-Comte.
Appartement 2 pièces
44 biens disponibles
N° de lot
Surface
Commodités
Étage
Exposition
Lot n°A001A001
42 m²
Parking, Jardin
RDC
Exposition : OuestOuest
Lot n°A104A104
40 m²
Parking, Terrasse / Balcon
Étage 1
Exposition : NordNord
Lot n°A105A105
39 m²
Parking, Terrasse / Balcon
Étage 1
Exposition : NordNord
Lot n°A106A106
40 m²
Parking, Terrasse / Balcon
Étage 1
Exposition : NordNord
Lot n°A107A107
39 m²
Parking, Terrasse / Balcon
Étage 1
Exposition : NordNord
Lot n°A111A111
43 m²
Parking, Terrasse / Balcon
Étage 1
Exposition : OuestOuest
Lot n°A204A204
40 m²
Parking, Terrasse / Balcon
Étage 2
Exposition : NordNord
Lot n°A205A205
39 m²
Parking, Terrasse / Balcon
Étage 2
Exposition : NordNord
Lot n°A206A206
40 m²
Parking, Terrasse / Balcon
Étage 2
Exposition : NordNord
Lot n°A207A207
39 m²
Parking, Terrasse / Balcon
Étage 2
Exposition : NordNord
Lot n°A211A211
43 m²
Parking, Terrasse / Balcon
Étage 2
Exposition : OuestOuest
Lot n°B002B002
40 m²
Parking, Terrasse / Balcon
RDC
Exposition : SudSud
Lot n°B003B003
40 m²
Parking, Jardin
RDC
Exposition : SudSud
Lot n°B005B005
40 m²
Parking, Jardin
RDC
Exposition : NordNord
Lot n°B006B006
40 m²
Parking, Jardin
RDC
Exposition : NordNord
Lot n°B009B009
40 m²
Parking, Jardin
RDC
Exposition : EstEst
Lot n°B010B010
40 m²
Parking, Jardin
RDC
Exposition : EstEst
Lot n°B011B011
40 m²
Parking, Jardin
RDC
Exposition : EstEst
Lot n°B012B012
39 m²
Parking, Jardin
RDC
Exposition : EstEst
Lot n°B013B013
39 m²
Parking, Jardin
RDC
Exposition : SudSud
Lot n°B014B014
38 m²
Parking, Jardin
RDC
Exposition : SudSud
Lot n°B015B015
38 m²
Parking, Jardin
RDC
Exposition : SudSud
Lot n°B101B101
42 m²
Parking, Terrasse / Balcon
Étage 1
Exposition : SudSud
Lot n°B102B102
40 m²
Parking, Terrasse / Balcon
Étage 1
Exposition : SudSud
Lot n°B103B103
40 m²
Parking, Terrasse / Balcon
Étage 1
Exposition : SudSud
Lot n°B105B105
40 m²
Parking, Terrasse / Balcon
Étage 1
Exposition : NordNord
Lot n°B106B106
40 m²
Parking, Terrasse / Balcon
Étage 1
Exposition : NordNord
Lot n°B109B109
40 m²
Parking, Terrasse / Balcon
Étage 1
Exposition : EstEst
Lot n°B110B110
40 m²
Parking, Terrasse / Balcon
Étage 1
Exposition : EstEst
Lot n°B111B111
40 m²
Parking, Terrasse / Balcon
Étage 1
Exposition : EstEst
Lot n°B112B112
38 m²
Parking, Terrasse / Balcon
Étage 1
Exposition : EstEst
Lot n°B113B113
41 m²
Parking, Terrasse / Balcon
Étage 1
Exposition : EstEst
Lot n°B114B114
35 m²
Parking, Terrasse / Balcon
Étage 1
Exposition : OuestOuest
Lot n°B115B115
38 m²
Parking, Terrasse / Balcon
Étage 1
Exposition : OuestOuest
Lot n°B116B116
39 m²
Parking, Terrasse / Balcon
Étage 1
Exposition : OuestOuest
Lot n°B201B201
42 m²
Parking, Terrasse / Balcon
Étage 2
Exposition : SudSud
Lot n°B202B202
40 m²
Parking, Terrasse / Balcon
Étage 2
Exposition : SudSud
Lot n°B203B203
40 m²
Parking, Terrasse / Balcon
Étage 2
Exposition : SudSud
Lot n°B205B205
40 m²
Parking, Terrasse / Balcon
Étage 2
Exposition : NordNord
Lot n°B206B206
40 m²
Parking, Terrasse / Balcon
Étage 2
Exposition : NordNord
Lot n°B209B209
40 m²
Parking, Terrasse / Balcon
Étage 2
Exposition : EstEst
Lot n°B210B210
40 m²
Parking, Terrasse / Balcon
Étage 2
Exposition : EstEst
Lot n°B212B212
42 m²
Parking, Terrasse / Balcon
Étage 2
Exposition : EstEst
Lot n°B213B213
42 m²
Parking, Terrasse / Balcon
Étage 2
Exposition : OuestOuest
N° de lot
Surface
Commodités
Étage
Exposition
Lot n°A002A002
59 m²
Parking, Jardin
RDC
Exposition : SudSud
Lot n°A003A003
59 m²
Parking, Jardin
RDC
Exposition : SudSud
Lot n°A004A004
66 m²
Parking, Jardin
RDC
Exposition : SudSud
Lot n°A006A006
59 m²
Parking, Jardin
RDC
Exposition : EstEst
Lot n°A007A007
61 m²
Parking, Jardin
RDC
Exposition : EstEst
Lot n°A009A009
58 m²
Parking, Jardin
RDC
Exposition : EstEst
Lot n°A101A101
59 m²
Parking, Terrasse / Balcon
Étage 1
Exposition : SudSud
Lot n°A102A102
59 m²
Parking, Terrasse / Balcon
Étage 1
Exposition : SudSud
Lot n°A108A108
61 m²
Parking, Terrasse / Balcon
Étage 1
Exposition : EstEst
Lot n°A110A110
58 m²
Parking, Terrasse / Balcon
Étage 1
Exposition : EstEst
Lot n°A201A201
59 m²
Parking, Terrasse / Balcon
Étage 2
Exposition : SudSud
Lot n°A202A202
59 m²
Parking, Terrasse / Balcon
Étage 2
Exposition : SudSud
Lot n°A203A203
65 m²
Parking, Terrasse / Balcon
Étage 2
Exposition : SudSud
Lot n°A208A208
61 m²
Parking, Terrasse / Balcon
Étage 2
Exposition : EstEst
Lot n°A209A209
59 m²
Parking, Terrasse / Balcon
Étage 2
Exposition : EstEst
Lot n°A210A210
58 m²
Parking, Terrasse / Balcon
Étage 2
Exposition : EstEst
Lot n°B004B004
63 m²
Parking, Jardin
RDC
Exposition : SudSud
Lot n°B007B007
59 m²
Parking, Jardin
RDC
Exposition : NordNord
Lot n°B008B008
61 m²
Parking, Jardin
RDC
Exposition : Nord-estNord-est
Lot n°B104B104
64 m²
Parking, Terrasse / Balcon
Étage 1
Exposition : SudSud
Lot n°B107B107
59 m²
Parking, Terrasse / Balcon
Étage 1
Exposition : NordNord
Lot n°B108B108
61 m²
Parking, Terrasse / Balcon
Étage 1
Exposition : EstEst
Lot n°B117B117
60 m²
Parking, Terrasse / Balcon
Étage 1
Exposition : OuestOuest
Lot n°B204B204
64 m²
Parking, Terrasse / Balcon
Étage 2
Exposition : SudSud
Lot n°B207B207
59 m²
Parking, Terrasse / Balcon
Étage 2
Exposition : NordNord
Lot n°B208B208
61 m²
Parking, Terrasse / Balcon
Étage 2
Exposition : EstEst
Lot n°B211B211
60 m²
Parking, Terrasse / Balcon
Étage 2
Exposition : EstEst
Lot n°B214B214
60 m²
Parking, Terrasse / Balcon
Étage 2
Exposition : OuestOuest
Lot n°B215B215
60 m²
Parking, Terrasse / Balcon
Étage 2
Exposition : OuestOuest

Investissez malin !

Ce programme peut bénéficier de nombreux avantages financiers adaptés à votre projet immobilier neuf :

Je recherche un bien pour...

Il n'existe pas de dispositif d'aide pour Investir sur ce programme.