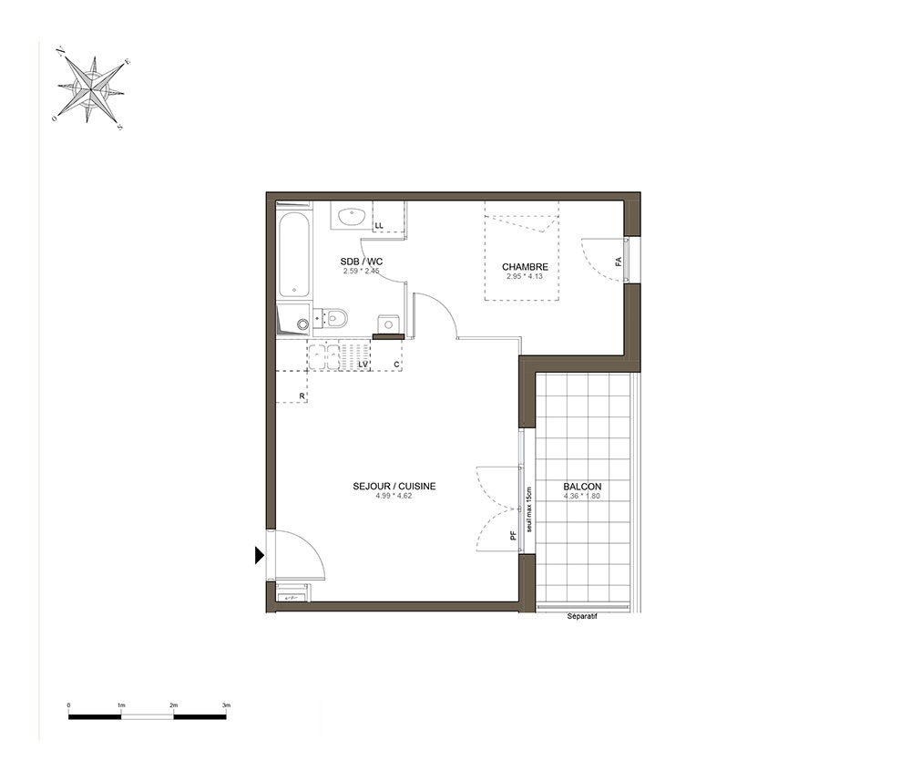
Appartement T2 n°B210 à Fontenay-le-Comte (85200)
Prix : nous consulter
Les Hauts de Fontenay à Fontenay-le-Comte
À noter
- Fontenay-le-Comte
- Livraison 4ème trimestre 2027
- Résidence principale/secondaire
- Investissement locatif
- Votre suivi personnalisé Peterson.fr
- Garanti prix direct promoteur
Prestations et équipements
À propos du programme
Une architecture contemporaine et soignée s'intégrant harmonieusement dans son environnement. La résidence Les Hauts de Fontenay dévoile une architecture discrète et élégante, inspirée des constructions locales et signée par l'agence Archi & Partners International. Habillés d'enduits aux teintes douces et coiffés de toitures en tuiles traditionnelles, ses deux bâtiments de trois étages s'implantent en parfaite harmonie avec le relief naturel et le paysage environnant. Le soin apporté aux espaces extérieurs et à la végétalisation confère au lieu une atmosphère sereine et agréable à vivre. Un cadre de vie conçu pour votre bien-être. Les appartements, du 2 au 3 pièces, se distinguent par des volumes optimisés et lumineux. Confortables et fonctionnels, ils s'ouvrent majoritairement sur un extérieur privatif sous forme de jardin individuel ou de balcon, parfait prolongement de l'espace intérieur. Certains grands logements bénéficient d'une double orientation, assurant une belle luminosité naturelle et des vues dégagées sur l'environnement alentour.
Fontenay-le-Comte
En travaux

Accédez à notre page dédiée au programme "Les Hauts de Fontenay" pour tout savoir sur la résidence, ses prestations et son quartier.
Autres biens disponibles
Investissez malin !
Ce programme peut bénéficier de nombreux avantages financiers adaptés à votre projet immobilier neuf :
Je recherche un bien pour...

