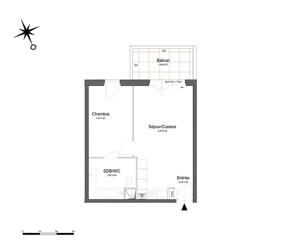
Appartement T2 n°A206 à Challans (85300)
Prix : nous consulter
Les Jardins Bois Soleil à Challans
À noter
- Challans
- Livraison 4ème trimestre 2027
- Résidence principale/secondaire
- Investissement locatif
- Votre suivi personnalisé Peterson.fr
- Garanti prix direct promoteur
Prestations et équipements
À propos du programme
Une architecture contemporaine et soignée s'intégrant harmonieusement dans son environnement.La résidence adopte une architecture sobre et élégante, alliant matériaux de qualité et finitions raffinées. Avec seulement deux étages sur rez-de-chaussée, elle propose une atmosphère intimiste, agrémentée d'espaces végétalisés qui favorisent le bien-être des résidents. Un cadre de vie conçu pour votre bien-être.Les appartements, du studio au 3 pièces, offrent des espaces optimisés, lumineux et confortables.La plupart des logements bénéficient d'un extérieur privatif sous forme de jardin individuel ou de balcon, certains 3 pièces profitant d'une double orientation pour une luminosité optimale.
Challans
En travaux

Accédez à notre page dédiée au programme "Les Jardins Bois Soleil" pour tout savoir sur la résidence, ses prestations et son quartier.
