Les Jardins Bois SoleilLes Jardins Bois Soleil
Les Jardins Bois Soleil
Les Jardins Bois Soleil

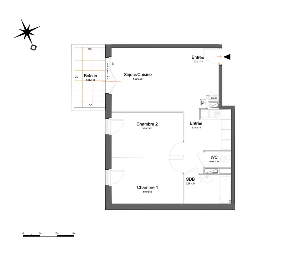
Appartement T3 n°A215 à Challans (85300)

Prix : nous consulter

Challans (85300)

Les Jardins Bois Soleil à Challans

Appartement
T3 / F3 / 3 pièces
59,61 m² habitables
2ème étage
Ouest
2 chambres
Station. 1
Balcon 7 m²

À noter

  • Challans
  • Livraison 4ème trimestre 2027
  • Résidence principale/secondaire
  • Investissement locatif
  • Votre suivi personnalisé Peterson.fr
  • Garanti prix direct promoteur

Prestations et équipements

Parking
Terrasse / Balcon

À propos du programme

Une architecture contemporaine et soignée s'intégrant harmonieusement dans son environnement.La résidence adopte une architecture sobre et élégante, alliant matériaux de qualité et finitions raffinées. Avec seulement deux étages sur rez-de-chaussée, elle propose une atmosphère intimiste, agrémentée d'espaces végétalisés qui favorisent le bien-être des résidents. Un cadre de vie conçu pour votre bien-être.Les appartements, du studio au 3 pièces, offrent des espaces optimisés, lumineux et confortables.La plupart des logements bénéficient d'un extérieur privatif sous forme de jardin individuel ou de balcon, certains 3 pièces profitant d'une double orientation pour une luminosité optimale.

En travaux

Livraison 4ème trimestre 2027

Accédez à notre page dédiée au programme "Les Jardins Bois Soleil" pour tout savoir sur la résidence, ses prestations et son quartier.

Autres biens disponibles

Le programme neuf Les Jardins Bois Soleil, situé dans la ville de Challans, est composé de 35 logements neufs de type appartement répartis en T1, T2, T3, livrés au 4ème trimestre 2027 et destinés aux différents projets : résidence principale, résidence secondaire et investissement locatif. Ce programme neuf est éligible au dispositif Droit Commun pour habiter ou investir à Challans.
Appartement 1 pièce
3 biens disponibles
N° de lot
Surface
Commodités
Étage
Exposition
Lot n°A110A110
27 m²
Terrasse / Balcon
Étage 1
Exposition : EstEst
Lot n°A210A210
27 m²
Terrasse / Balcon
Étage 2
Exposition : EstEst
Lot n°A218A218
21 m²
Terrasse / Balcon
Étage 2
Exposition : OuestOuest
N° de lot
Surface
Commodités
Étage
Exposition
Lot n°A011A011
39 m²
Parking, Jardin
RDC
Exposition : Sud-estSud-est
Lot n°A012A012
37 m²
Parking, Jardin
RDC
Exposition : Sud-estSud-est
Lot n°A017A017
37 m²
Parking, Jardin
RDC
Exposition : OuestOuest
Lot n°A101A101
39 m²
Parking, Terrasse / Balcon
Étage 1
Exposition : OuestOuest
Lot n°A102A102
36 m²
Parking, Terrasse / Balcon
Étage 1
Exposition : SudSud
Lot n°A104A104
41 m²
Parking, Terrasse / Balcon
Étage 1
Exposition : SudSud
Lot n°A106A106
40 m²
Parking, Terrasse / Balcon
Étage 1
Exposition : NordNord
Lot n°A112A112
39 m²
Parking, Terrasse / Balcon
Étage 1
Exposition : EstEst
Lot n°A118A118
37 m²
Parking, Terrasse / Balcon
Étage 1
Exposition : OuestOuest
Lot n°A119A119
39 m²
Parking, Terrasse / Balcon
Étage 1
Exposition : OuestOuest
Lot n°A201A201
39 m²
Parking, Terrasse / Balcon
Étage 2
Exposition : OuestOuest
Lot n°A202A202
36 m²
Parking, Terrasse / Balcon
Étage 2
Exposition : SudSud
Lot n°A203A203
37 m²
Parking, Terrasse / Balcon
Étage 2
Exposition : SudSud
Lot n°A204A204
41 m²
Parking, Terrasse / Balcon
Étage 2
Exposition : SudSud
Lot n°A206A206
40 m²
Parking, Terrasse / Balcon
Étage 2
Exposition : NordNord
Lot n°A207A207
40 m²
Parking, Terrasse / Balcon
Étage 2
Exposition : NordNord
Lot n°A208A208
39 m²
Parking, Terrasse / Balcon
Étage 2
Exposition : NordNord
Lot n°A211A211
38 m²
Parking, Terrasse / Balcon
Étage 2
Exposition : EstEst
Lot n°A212A212
39 m²
Parking, Terrasse / Balcon
Étage 2
Exposition : EstEst
Lot n°A213A213
37 m²
Parking, Terrasse / Balcon
Étage 2
Exposition : EstEst
Lot n°A216A216
37 m²
Parking, Terrasse / Balcon
Étage 2
Exposition : OuestOuest
Lot n°A217A217
39 m²
Parking, Terrasse / Balcon
Étage 2
Exposition : OuestOuest
N° de lot
Surface
Commodités
Étage
Exposition
Lot n°A013A013
57 m²
Parking, Jardin
RDC
Exposition : Sud-estSud-est
Lot n°A014A014
60 m²
Parking, Jardin
RDC
Exposition : Sud-estSud-est
Lot n°A015A015
60 m²
Parking, Jardin
RDC
Exposition : OuestOuest
Lot n°A016A016
57 m²
Parking, Jardin
RDC
Exposition : OuestOuest
Lot n°A115A115
60 m²
Parking, Terrasse / Balcon
Étage 1
Exposition : EstEst
Lot n°A117A117
57 m²
Parking, Terrasse / Balcon
Étage 1
Exposition : OuestOuest
Lot n°A205A205
39 m²
Parking, Terrasse / Balcon
Étage 2
Exposition : OuestOuest
Lot n°A209A209
61 m²
Parking, Terrasse / Balcon
Étage 2
Exposition : EstEst
Lot n°A214A214
60 m²
Parking, Terrasse / Balcon
Étage 2
Exposition : EstEst