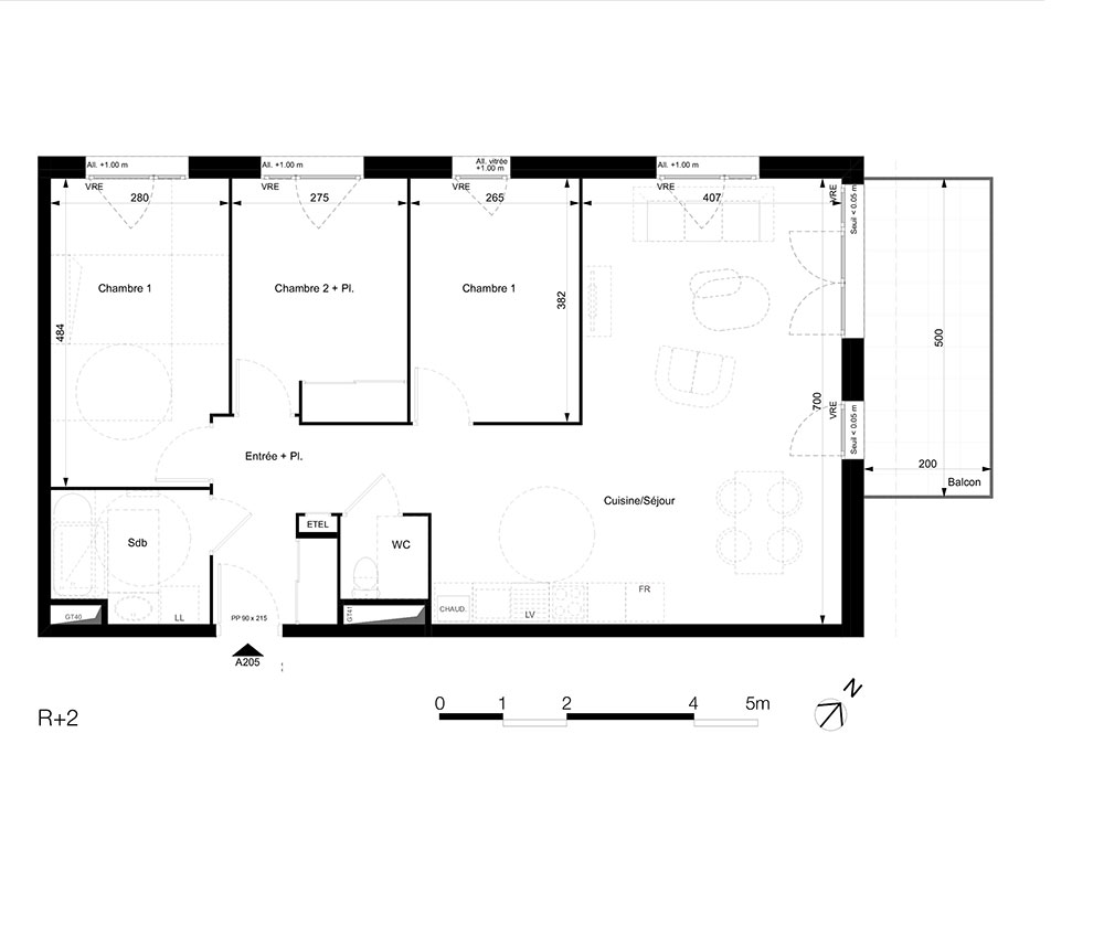
Appartement T4 n°A205 à Saint-Ferréol (74210)
Prix : nous consulter
Bel'adret à Saint-Ferréol
À noter
- Saint-Ferréol
- Livraison 1er trimestre 2028
- Résidence principale/secondaire
- Investissement locatif
- Votre suivi personnalisé Peterson.fr
- Garanti prix direct promoteur
Prestations et équipements
À propos du programme
Nichée entre montagnes et rivières, la commune de Saint-Ferréol conjugue authenticité et dynamisme. Ce village prisé offre un cadre de vie serein et préservé tout en restant parfaitement connecté. Sa situation idéale, à seulement 14 minutes en voiture* du lac d’Annecy et à 30 minutes en voiture* des portes d’Annecy, séduit aussi bien les actifs et les familles que les seniors, qui apprécieront le confort et la tranquillité d’un logement neuf.
Saint-Ferréol
En travaux

Accédez à notre page dédiée au programme "Bel'adret" pour tout savoir sur la résidence, ses prestations et son quartier.
Autres biens disponibles
Découvrez le programme neuf « Bel'adret »
« Bel'adret » est un projet immobilier neuf. Il se situe à Saint-Ferréol. Ce programme immobilier propose 12 appartements, tous neufs, et 11 d'entre eux sont toujours disponibles. De type T2, T3 et T4, ils s'adressent aux acheteurs intéressés par l'investissement locatif comme aux personnes à la recherche de leur résidence principale ou secondaire. Éligibles au dispositif de droit commun, vous pouvez d'ores et déjà noter que les logements seront accessibles au premier trimestre 2028.


